

19 900 000 Kč
Splátka od 78 773 Kč měsíčně (úrok 4,24 %)Komerční nemovitost, 490 m², Masarykova, Luhačovice
Nabízíme k prodeji zavedený penzion OÁZA v samotném srdci Luhačovic – lázeňského města s celoroční návštěvností.
Nemovitost je nyní provozována jako penzion s pěti garsonkami a restaurací, avšak svým dispozičním řešením a kapacitou nabízí ideální potenciál pro přeměnu na moderní apartmánový dům.
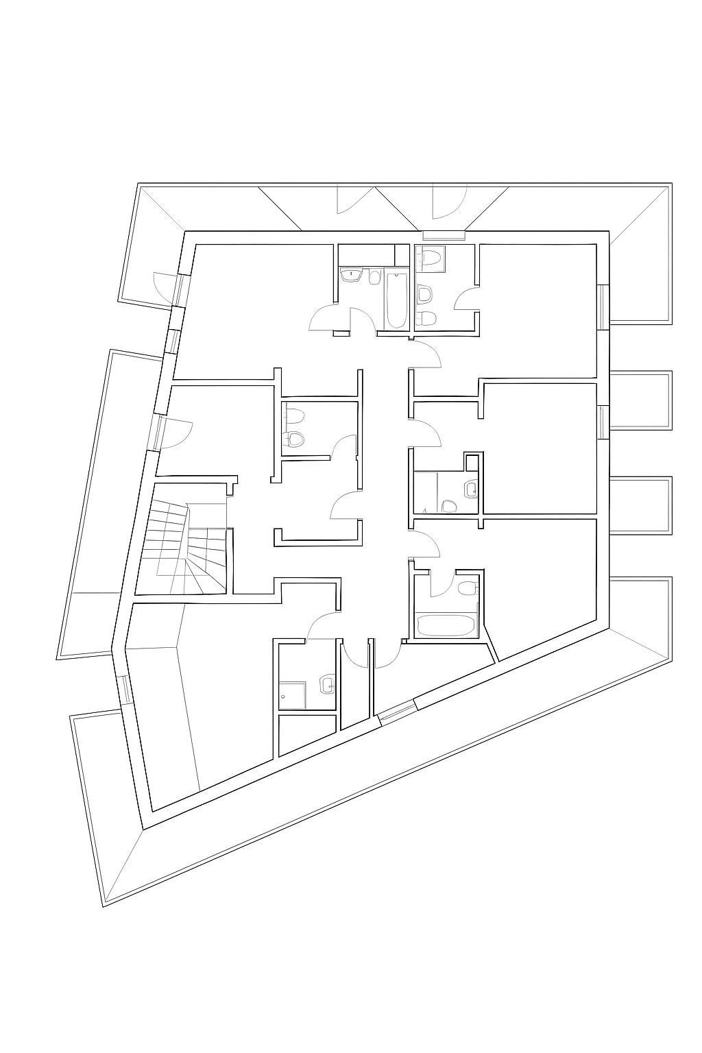
Investiční záměr – návrh nové dispozice
Přízemí: 2 komfortní apartmány 2+KK
Patro: 6 garsoniér 1+KK
Současná hrubá stavba i technické řešení objektu jsou zcela dostatečné pro tuto změnu užívání.
Záměr nevyžaduje rozsáhlou přestavbu, spíše modernizaci a úpravu interiérů.
Současný stav penzionu
5 dvoulůžkových pokojů a 1 apartmán (cca 15 lůžek)
Každý pokoj má vlastní koupelnu, TV, lednici a WiFi
Restaurace s kuchyní a letní zahrádkou
Možnost pořádání rodinných a firemních akcí
Parkování možné v bezprostředním okolí objektu
Penzion dlouhodobě hodnocen velmi dobře (Booking 8,4/10, Slevomat 4,3/5)
Hlavní přednosti
Výjimečná poloha v centru Luhačovic, pár minut chůze od lázeňské kolonády
Stabilní návštěvnost díky lázeňskému ruchu a turistice
Domácí atmosféra, klidné prostředí a udržovaný objekt
Možnost parkování před objektem i v okolí
Zahrádka a venkovní posezení vhodné pro hosty i komerční využití
Pro investora
Tento objekt představuje jedinečnou příležitost získat nemovitost v nejžádanější části Luhačovic, s možností navýšení výnosu prostřednictvím konverze na apartmánový dům.
Lokalita, dispozice a kapacita domu zajišťují dlouhodobě vysokou obsazenost i zajímavou návratnost investice.
Detailní ekonomické údaje o výnosech, provozních nákladech a předpokladech konverze jsou k dispozici na vyžádání.
Po přečtení základních informací mě neváhejte kontaktovat pro více detailů nebo sjednání osobní prohlídky.
Parametry
- ID nabídky Realingo-968946
- Jiný druh stavby
- Velmi dobrý stav
- 490 m² užitné plochy
- 600 m² pozemku
- 210 m² zastavěné plochy
- 40 612 Kč za m² užitné plochy
- Osobní vlastnictví
- Energeticky méně úsporná (D)
- Odpad: veřejná kanalizace
- Elektřina: 230 V
- Plynovod
- na Realingu
- Aktualizace před 5 dny
Co je v okolí
včetně kontaktních údajů na majitele
Jste inzerent?
Je toto vaše nabídka? Vylepšete ji a získejte více zájemců. Inzerování na Realingu je zdarma pro všechny.
19 900 000 Kč
Splátka od 78 773 Kč měsíčně (úrok 4,24 %)Komerční nemovitost, 490 m²
Masarykova, Luhačovice
včetně kontaktních údajů na majitele
Jste inzerent?
Je toto vaše nabídka? Vylepšete ji a získejte více zájemců. Inzerování na Realingu je zdarma pro všechny.