

Prodej budovy s možností vybudovat penzion, nebo ideální domov o zastavěné ploše 161 m² se zahradou v obci Jevišovka ve vinařské a rekreační oblasti nedaleko vodní nádrže Nové Mlýny.
Budova s pozemky se nachází v klidné lokalitě. Je situovaná v jižní části obce Jevišovka poblíž jejího centra.
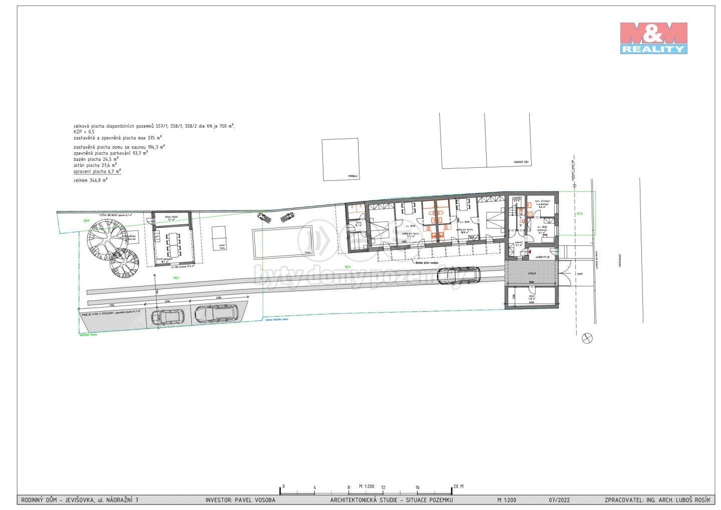
Budova je momentálně určena k rekonstrukci, na niž je již vypracována architektonická studie.
Budova stojí na pozemku 557/1; součástí pozemku je stavba. Druh pozemku: zastavěná plocha a nádvoří
o výměře 455m²
557/2 Druh pozemku: ostatní plocha o výměře 22m²
558/1 Druh pozemku: zahrada o výměře 263m²
558/2 Druh pozemku: zahrada o výměře 32m²
Celková velikost pozemku včetně zastavěné části je
722m².
Po dohodě je možné odstranění budovy a zakoupení vyklizeného pozemku.
Pro více informací neváhejte kontaktovat makléře.
Parametry
- ID nabídky Realingo-904610
- Cihlová stavba
- Před rekonstrukcí
- Přízemí (přízemní budova s 1 podzemním patrem)
- 150 m² užitné plochy
- 772 m² pozemku
- 17 327 Kč za m² užitné plochy
- Nevybaveno nábytkem
- Osobní vlastnictví
- Elektřina: 230 V a 400 V
- Možnost parkování na ulici a v garáži
- na Realingu
- Aktualizace před 24 dny