

+2 fotografie
Rezervováno.
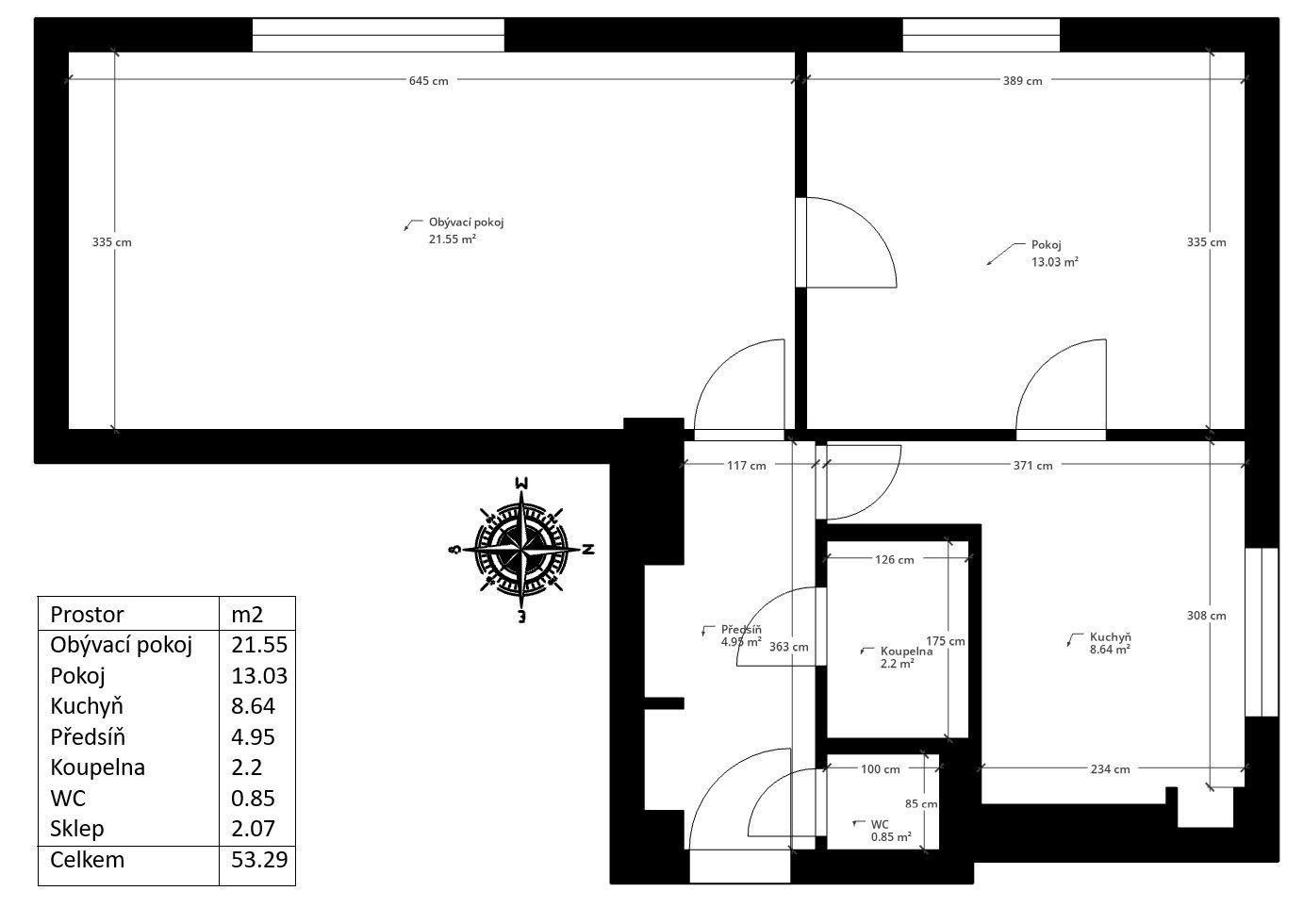
Dobrý den, předmětem připravované nabídky k prodeji byl byt o dispozici 2+1 a celkové výměře 53,17 m², který se nachází v 4.NP zděného bytového domu s výtahem v ulici K Blahobytu v Pardubicích na sídlišti zvaném Višňovka.
Děkuji, Václav Růžička, realitní specialista.
Prodávající si vyhrazuje právo na výběr kupujícího dle vlastní úvahy (způsob úhrady kupní ceny, serióznost jednání apod.).
Parametry
- ID nabídky Realingo-XA-465
- Cihlová stavba
- Dobrý stav
- Patrový
- 3. patro (z 4) s výtahem
- 53 m² užitné plochy
- Osobní vlastnictví
- Výtah, sklep a bezbariérový
- Energeticky méně úsporná (D)
- na Realingu
- Aktualizace před 28 dny
Mapa se načítá...







