

Nabízíme k prodeji byt po rekonstrukci o velikosti 2+1 s lodžií, s užitnou plochou 51 m², který se nachází v žádané lokalitě Praha 9 Vysočany.
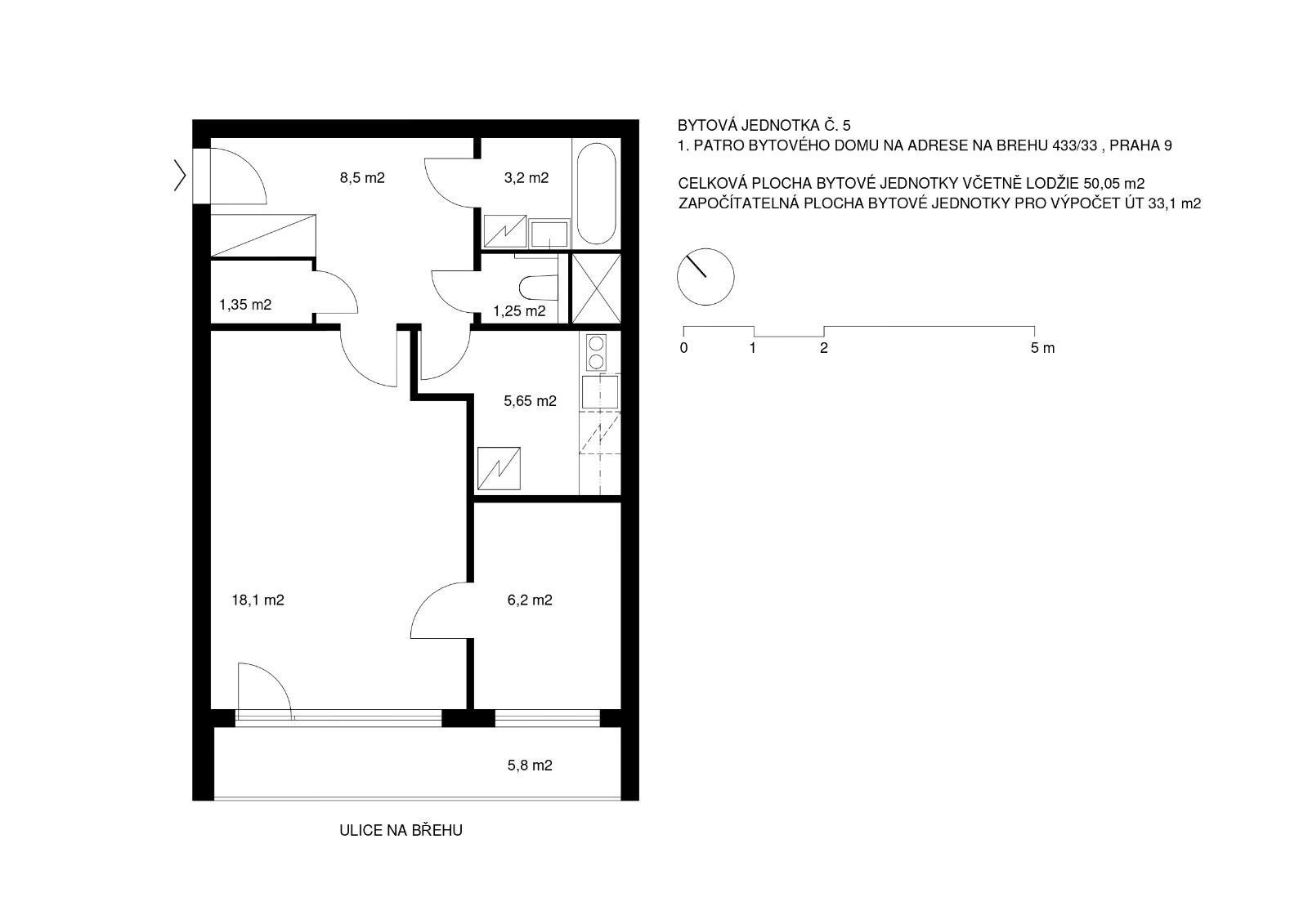
Byt je umístěn v 1. patře panelového domu a má 45,50 m² podlahové plochy. K bytu náleží také sklep a lodžie o velikosti 5,8 m², která poskytuje další prostor pro relaxaci a odpočinek. Orientaci bytu ocení každý, kdo hledá klid a zároveň chce být blízko městského ruchu. Nedaleká Rokytka, tenisové kurty, rozlehlý park a cyklostezka jsou další výhodou této lokality pro sportovní vyžití.
Interiér bytu je částečně zařízený domácí spotřebiče, jako jsou indukční varná deska, mikrovlnná trouba, samostatně stojící lednice, vestavěná elektrická trouba, digestoř a pračka.
V blízkosti se nachází veškerá občanská vybavenost Městský úřad, banka, školky, Základní škola, pošta, nákupní centrum, restaurace a další služby, které zaručují vysokou kvalitu bydlení. Dopravní dostupnost je také výborná, v blízkosti se nachází stanice metra a městské dopravy, ale i vlaku, což usnadňuje rychlý přesun po celé Praze i mimo Prahu.
Domluvte si prohlídku a přijďte se přesvědčit, že Vysočany mohou být právě to pravé místo pro váš nový domov.
Parametry
- ID nabídky Realingo-972579
- Panelová stavba
- Po rekonstrukci
- 1. patro
- 50 m² užitné plochy
- 46 m² podlahové plochy
- 139 800 Kč za m² užitné plochy
- Osobní vlastnictví
- Lodžie
- Energeticky mimořádně nehospodárná (G)
- na Realingu
- Aktualizace před 24 dny
Co je v okolí
včetně kontaktních údajů na majitele
Jste inzerent?
Je toto vaše nabídka? Vylepšete ji a získejte více zájemců. Inzerování na Realingu je zdarma pro všechny.
Podobné nabídky v okolí
včetně kontaktních údajů na majitele
Jste inzerent?
Je toto vaše nabídka? Vylepšete ji a získejte více zájemců. Inzerování na Realingu je zdarma pro všechny.







