

Nabízíme Vám ke koupi prostorný byt v původním stavu o dispozici 2+1 a výměře 65 m², který se nachází v Kutné Hoře – Šipší. Byt je situován ve 3. nadzemním podlaží menšího panelového domu bez výtahu a je v osobním vlastnictví.
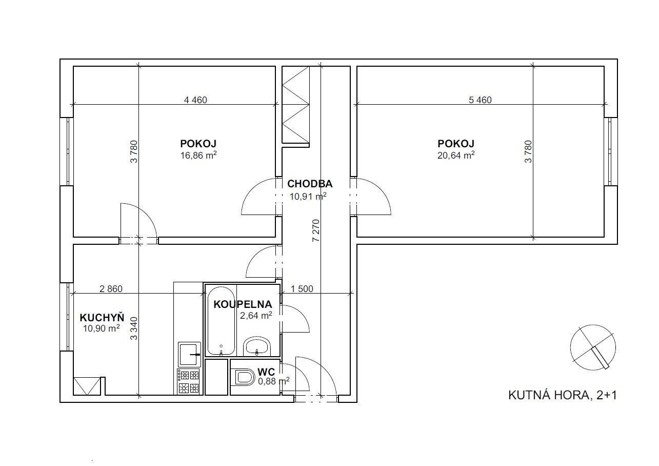
Byt je v původním stavu, je určený ke kompletní rekonstrukci s možností změny dispozice na 3+kk. Dispozice: vstupní chodba, kuchyň s jídelnou, dva neprůchozí pokoje, spíž, komora, koupelna s vanou a samostatná toaleta.
Vytápění bytu a teplá voda je zajištěna dálkovým teplovodem. K bytu náleží sklepní kóje. K použití jsou také společné prostory jako kolárna, sušárna a další. V domě je zavedena společná TV anténa.
Bytový dům prošel výměnou střešní krytiny a vchodových dveří. Do budoucna je plánována instalace výtahu.
Parkování je bezproblémové přímo před bytovým domem nebo v jeho okolí. Kousek od domu najdeme mateřskou školku s dětským hřištěm. Lokalita nabízí velmi dobrou občanskou vybavenost – obchody (LIDL, KAUFLAND, PENNY), restaurace, pošta, lékař, kultura, základní i mateřská škola.
Byt je vhodný pro zájemce, kteří hledají klidné a pohodlné bydlení na příjemném místě a nebojí se kompletní rekonstrukce dle svých představ, stejně tak jako pro investory, kteří hledají nemovitost s potenciálem pronájmu. K předání je byt připraven po dohodě s majitelem kdykoliv.
V případě zájmu Vám rádi pomůžeme zajistit vhodné financování podle Vašich možností a potřeb. Těšíme se na setkání při prohlídce.
Parametry
- ID nabídky Realingo-973644
- Panelová stavba
- Před rekonstrukcí
- 2. patro
- 65 m² užitné plochy
- 63 077 Kč za m² užitné plochy
- Osobní vlastnictví
- Energeticky mimořádně nehospodárná (G)
- na Realingu
Co je v okolí
včetně kontaktních údajů na majitele
Jste inzerent?
Je toto vaše nabídka? Vylepšete ji a získejte více zájemců. Inzerování na Realingu je zdarma pro všechny.
Podobné nabídky v okolí
včetně kontaktních údajů na majitele
Jste inzerent?
Je toto vaše nabídka? Vylepšete ji a získejte více zájemců. Inzerování na Realingu je zdarma pro všechny.







