

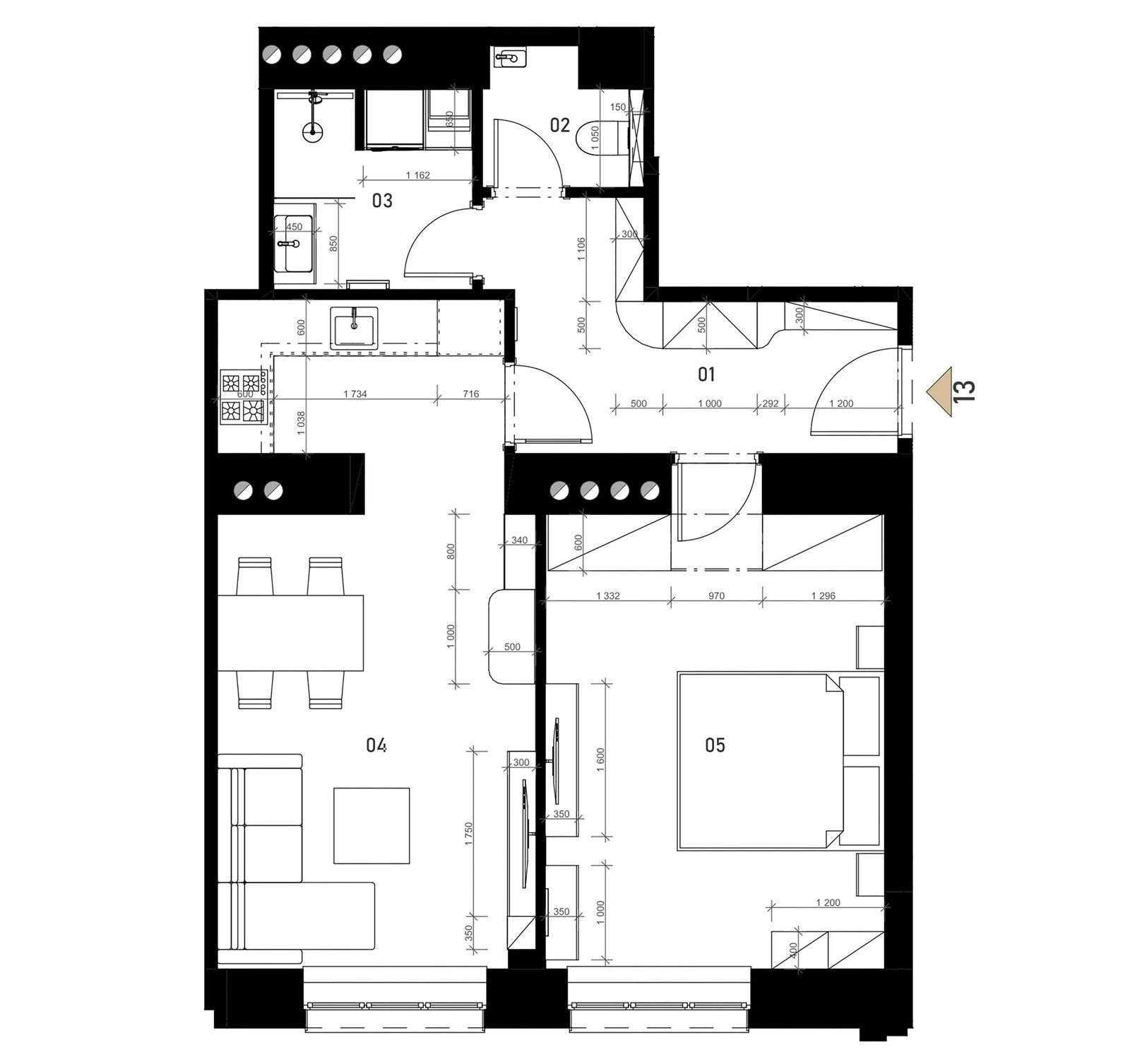
Kompletně vybavená bytová jednotka o dispozici 2+kk a celkové podlahové ploše 63,1 m² se nachází v 1. podlaží šestipodlažního bytového domu na Břevnově. K jednotce náleží sklepní kóje o výměře 2,8 m².
Byt je dokončen do standardu „fit out“, tedy k nastěhování – včetně finálních povrchů, sanitárního vybavení kuchyňské linky, nábytku na míru a dalšího vybavení. Nechybí dřevěné podlahy, nová okna a moderní koupelna.
Celý dům prošel citlivou rekonstrukcí a rezidenti mohou nově využívat praktické společné prostory jako jsou fitness, sauna, kolárna, kočárkárna nebo klidný vnitroblok určený k odpočinku.
Lokalita nabízí příjemné rezidenční prostředí s kompletní občanskou vybaveností v okolí. V docházkové vzdálenosti jsou kavárny, restaurace, obchody, školy, zdravotnická zařízení i zastávky MHD. Na dosah je také městská zeleň a parky, které vybízejí k odpočinku či sportu.
Cena je vč. veškerého vybavení.
Parametry
- ID nabídky Realingo-DRI13
- Cihlová stavba
- Po rekonstrukci
- 1. patro
- 60 m² užitné plochy
- 63 m² podlahové plochy
- 63 m² zastavěné plochy
- 187 000 Kč za m² užitné plochy
- Osobní vlastnictví
- Energeticky velmi nehospodárná (F)
- na Realingu
- Aktualizace před 8 dny
Co je v okolí
včetně kontaktních údajů na majitele
Jste inzerent?
Je toto vaše nabídka? Vylepšete ji a získejte více zájemců. Inzerování na Realingu je zdarma pro všechny.
Podobné nabídky v okolí
včetně kontaktních údajů na majitele
Jste inzerent?
Je toto vaše nabídka? Vylepšete ji a získejte více zájemců. Inzerování na Realingu je zdarma pro všechny.







