

V nově rekonstruované budově nabízíme byt 2+kk jako investici. Polosamota vzdálená pouhých 800 m od Luhačovické přehrady uprostřed 7 ha pastvin a lesa nabízí možnost rekreace nebo klidného bydlení. Vlastní parkovací místo (zahrnuto v ceně), výtah, možnost stravování ve společné jídelně zajišťují veškerý komfort. Dům spravuje Bytové družstvo Martincův mlýn, které zajistí členům roční výnos z pronájmu ve výši 4% z ceny bytu bez starostí s nájemníky. Dokončení ve 2.Q/2026, možnost vybavení kuchyňskou linkou (není zahrnuta v ceně). Tento byt Vám poslouží jako bezpečné uložení peněz a v budoucnu může být pohodlným místem pro rekreaci nebo trvalé bydlení na důchod. Pro prohlídku a další informace volejte makléři.
Parametry
- ID nabídky Realingo-972172
- Cihlová stavba
- Ve výstavbě
- 3. patro
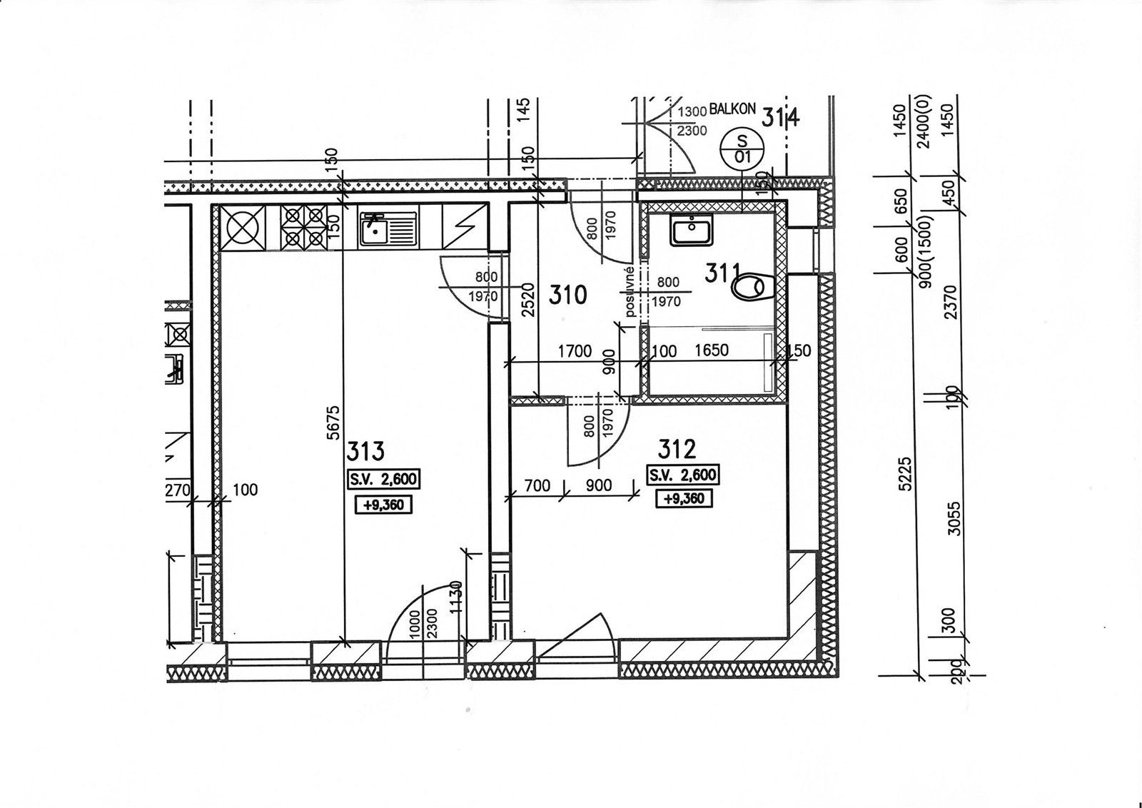
- 41 m² užitné plochy
- 40 m² podlahové plochy
- 97 317 Kč za m² užitné plochy
- Družstevní vlastnictví
- na Realingu
Co je v okolí
včetně kontaktních údajů na majitele
Jste inzerent?
Je toto vaše nabídka? Vylepšete ji a získejte více zájemců. Inzerování na Realingu je zdarma pro všechny.
Podobné nabídky v okolí
včetně kontaktních údajů na majitele
Jste inzerent?
Je toto vaše nabídka? Vylepšete ji a získejte více zájemců. Inzerování na Realingu je zdarma pro všechny.






