

Nabízíme k prodeji prostorný byt 3 + 1 se zasklenou lodžií, který se nachází na adrese Zbožská č. p. 2169 v Nymburce.
Bytová jednotka o celkové ploše 78,83 m² (užitná plocha 70,69 m²) se nachází ve 3. patře osmipodlažního panelového domu, který prošel celkovou revitalizací a je v dobrém stavu.
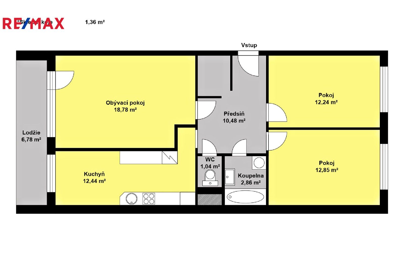
Součástí bytové jednotky je chodba, kde je efektivně využit prostor, zahrnuje šatnu, tři pokoje, samostatnou kuchyň s jídelním koutem, který je nyní využíván, jako pracovna, dále zděné jádro s novou koupelnou, samostatné WC a zasklenou lodžii, která poskytuje ideální místo pro relaxaci a užívání si výhledu do zeleně.
Byt disponuje centrálním dálkovým vytápěním a ohřevem vody. Budova je napojena na veškeré inženýrské sítě, včetně kanalizace.
K bytové jednotce patří sklep o velikosti 1,36 m² a možnost užívání kolárny/kočárkárny a sušárny.
Veškerá občanská vybavenost s možností využití volného času je v bezprostředním okolí (supermarket, restaurace, bankomat, poliklinika, škola, školka, dětské hřiště, MHD). Centrum města je v dosahu 10 minut.
Díky umístění se tato bytová jednotka stává ideálním místem pro bydlení rodiny s dětmi.
Nymburk je okresní město ve Středočeském kraji, vzdálené 45 km od Prahy, 30 km od Mladé Boleslavi a 25 km od Kolína.
Neváhejte mi zavolat, ráda Vás nemovitostí provedu.
Parametry
- ID nabídky Realingo-429160
- Skeletová stavba
- Dobrý stav
- 2. patro
- 71 m² užitné plochy
- 78 m² pozemku
- 79 m² podlahové plochy
- 71 831 Kč za m² užitné plochy
- Osobní vlastnictví
- Lodžie
- Energeticky méně úsporná (D)
- na Realingu
Co je v okolí
včetně kontaktních údajů na majitele
Jste inzerent?
Je toto vaše nabídka? Vylepšete ji a získejte více zájemců. Inzerování na Realingu je zdarma pro všechny.
Podobné nabídky v okolí
včetně kontaktních údajů na majitele
Jste inzerent?
Je toto vaše nabídka? Vylepšete ji a získejte více zájemců. Inzerování na Realingu je zdarma pro všechny.







