

7 490 000 Kč
Byt 3+kk, 61 m², Lindnerova, Praha
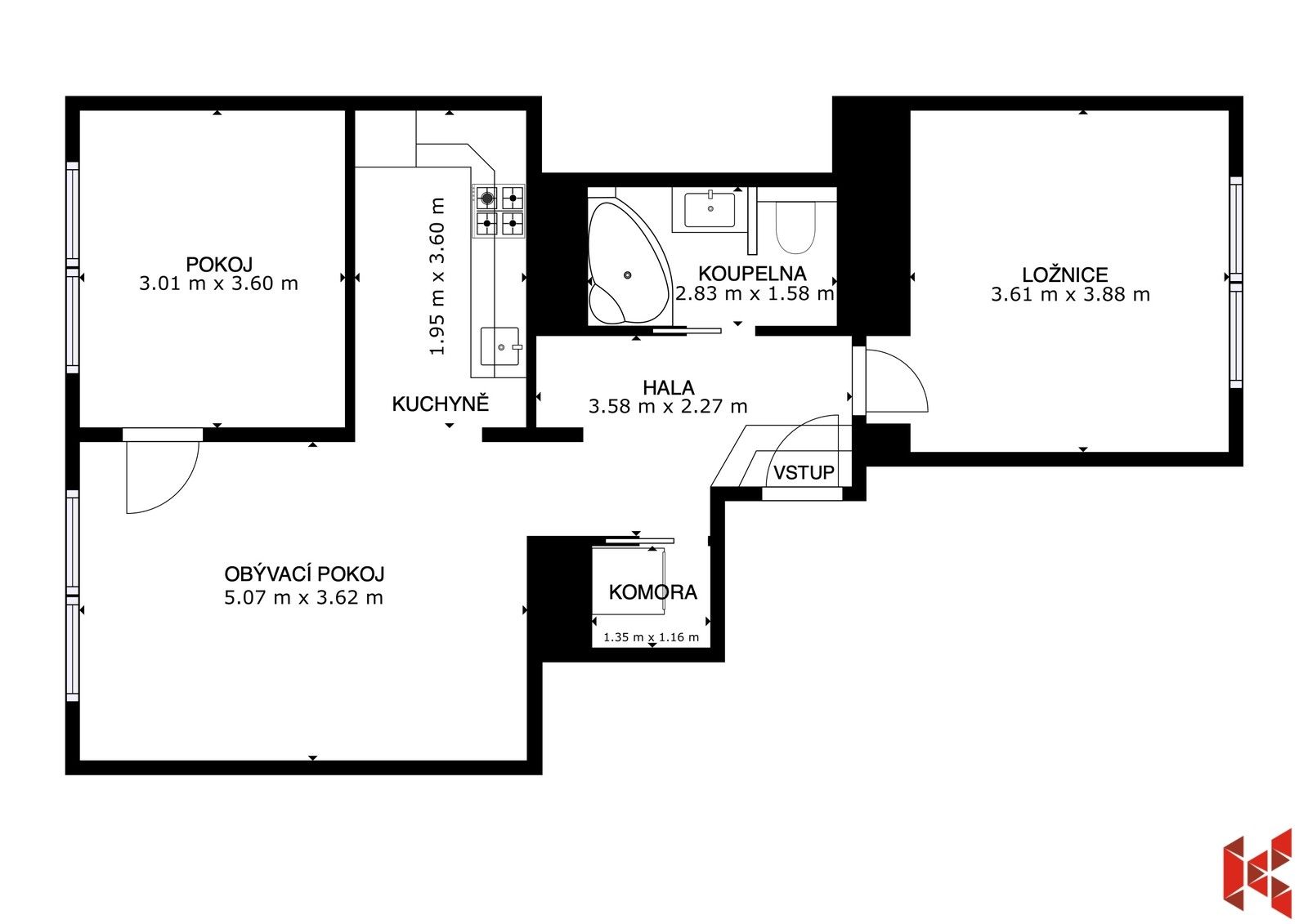
Nabízíme Vám k prodeji družstevní byt o velikosti 61,27 m² s chytře řešenou dispozicí 3+kk v klidné ulici Lindnerova, Praha 8 - Libeň. Byt je ve výborném stavu a připravený rovnou k nastěhování. Byt se nachází ve zvýšeném přízemí, což poskytuje dostatek soukromí pro každodenní život.
Co Vám byt nabízí:
? Dobře řešená dispozice 3+kk.
? Užitnou plochu 61,27 m² (plus dalších 3,5m² sklepní kóje).
? Družstevní vlastnictví se splacenou anuitou.
? Skvělý stav.
? Připravené ihned k nastěhování.
? Zvýšené přízemí (prakticky výše 1. patra).
? Obývací pokoj a jedna ložnice orientovány do ulice, druhá ložnice do vnitrobloku.
? Klimatizace v bytě.
? Plynový kotel k ohřevu vody a vytápění.
? Nové podlahy.
? Pečlivě vedený bytový dům.
? Bohatá občanská vybavenost a dostupnost MHD.
? Přesná adresa: Lindnerova 1021/14, Praha - Libeň.
? Cenu včetně právního servisu, provize, bezpečné úschovy a všech poplatků.
? Možnost financování hypotékou se zástavou jiné nemovitosti.
? Prodávající si vyhrazuje právo vybrat kupujícího na základě jím zvolených kritérií.
Skvělá lokalita plná života i klidu. Libeň je čtvrť, která se rychle rozvíjí a spojuje to nejlepší z městského života s přírodou na dosah. V okolí najdete vše, co ke spokojenému bydlení potřebujete:
? Restaurace a kavárny – včetně vyhlášené restaurace Burger & Bistro u Toma.
? Občanskou vybavenost pro rodiny – školy, školky, gymnázium, střední školy, dětská hřiště, DDM, Sokol, poliklinika.
? Zeleň a sport – Park pod Korábem, Thomayerovy sady, cyklostezka podél Vltavy – ideální pro běh, jízdu na kole i relaxaci.
? Nákupy – Albert, Lidl a Kaufland + nespočet malých praktických obchodů.
? Kulturní scéna – Divadlo pod Palmovkou, galerie, koncerty a další akce v okolí.
? Rychlé a jednoduché spojení do dalších částí Prahy.
Pro více informací a prohlídku jsme k dispozici. Těšíme se.
Parametry
- ID nabídky Realingo-1164
- Jiný druh stavby
- Dobrý stav
- 61 m² užitné plochy
- 64 m² pozemku
- 65 m² podlahové plochy
- 122 787 Kč za m² užitné plochy
- Družstevní vlastnictví
- Energeticky mimořádně nehospodárná (G)
- na Realingu
Co je v okolí
včetně kontaktních údajů na majitele
Jste inzerent?
Je toto vaše nabídka? Vylepšete ji a získejte více zájemců. Inzerování na Realingu je zdarma pro všechny.
Podobné nabídky v okolí
7 490 000 Kč
Byt 3+kk, 61 m²
Lindnerova, Praha
včetně kontaktních údajů na majitele
Jste inzerent?
Je toto vaše nabídka? Vylepšete ji a získejte více zájemců. Inzerování na Realingu je zdarma pro všechny.







