

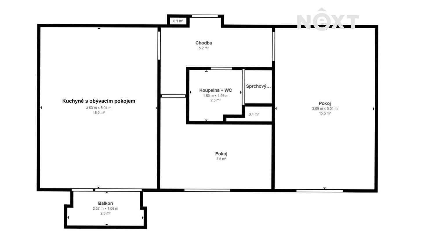
Na prodej je byt 21 o rozloze 50 m², který byl přestavěn na 3kk, rovněž o rozloze 50 m², a nachází se ve druhém nadzemním podlaží na adrese 1. Máje 2896, Most. Tento byt prošel kompletní rekonstrukcí v roce 2025, při které se nešetřilo na kvalitních materiálech. Během rekonstrukce byla plně zmodernizována koupelna, položeny nové podlahy a aplikovány štuky. Stropy byly sníženy pro lepší zvukovou i tepelnou izolaci a elektroinstalace byla kompletně vyměněna. Kuchyň je vybavena linkou na míru, která zahrnuje i myčku nádobí. K bytu dále náleží sklepní kóje, která poskytuje další úložný prostor. Náklady na bydlení pro jednu osobu činí 3 605 Kč měsíčně, což zahrnuje náklady na vodu, topení a fond oprav. Elektřina není zahrnuta v těchto poplatcích a bude účtována zvlášť. Lokalita, kde se byt nachází, je dobře vybavena občanskou vybaveností. V blízkosti najdete základní a mateřskou školu, což je ideální pro rodiny s dětmi. V docházkové vzdálenosti jsou také obchody a služby, které usnadňují každodenní život. Sportovní středisko v okolí nabízí široké možnosti pro volnočasové aktivity a aktivní odpočinek. Město Most navíc plánuje další rozvoj veřejných prostor a infrastruktury, což by mělo přispět ke zvýšení kvality života v této oblasti. Celkově se jedná o atraktivní místo pro bydlení s dobrým přístupem ke všem potřebným službám a aktivitám. Pro komunikaci uvádějte evidenční číslo zakázky N112941.
Parametry
- ID nabídky Realingo-N112941
- Po rekonstrukci
- 2. patro
- 50 m² užitné plochy
- 55 980 Kč za m² užitné plochy
- Družstevní vlastnictví
- Energeticky úsporná (C)
- na Realingu
- Aktualizace před 78 dny
Co je v okolí
včetně kontaktních údajů na majitele
Jste inzerent?
Je toto vaše nabídka? Vylepšete ji a získejte více zájemců. Inzerování na Realingu je zdarma pro všechny.
Podobné nabídky v okolí
včetně kontaktních údajů na majitele
Jste inzerent?
Je toto vaše nabídka? Vylepšete ji a získejte více zájemců. Inzerování na Realingu je zdarma pro všechny.







