

Hledáte moderní a nadčasové bydlení v klidné části města Havlíčkův Brod?
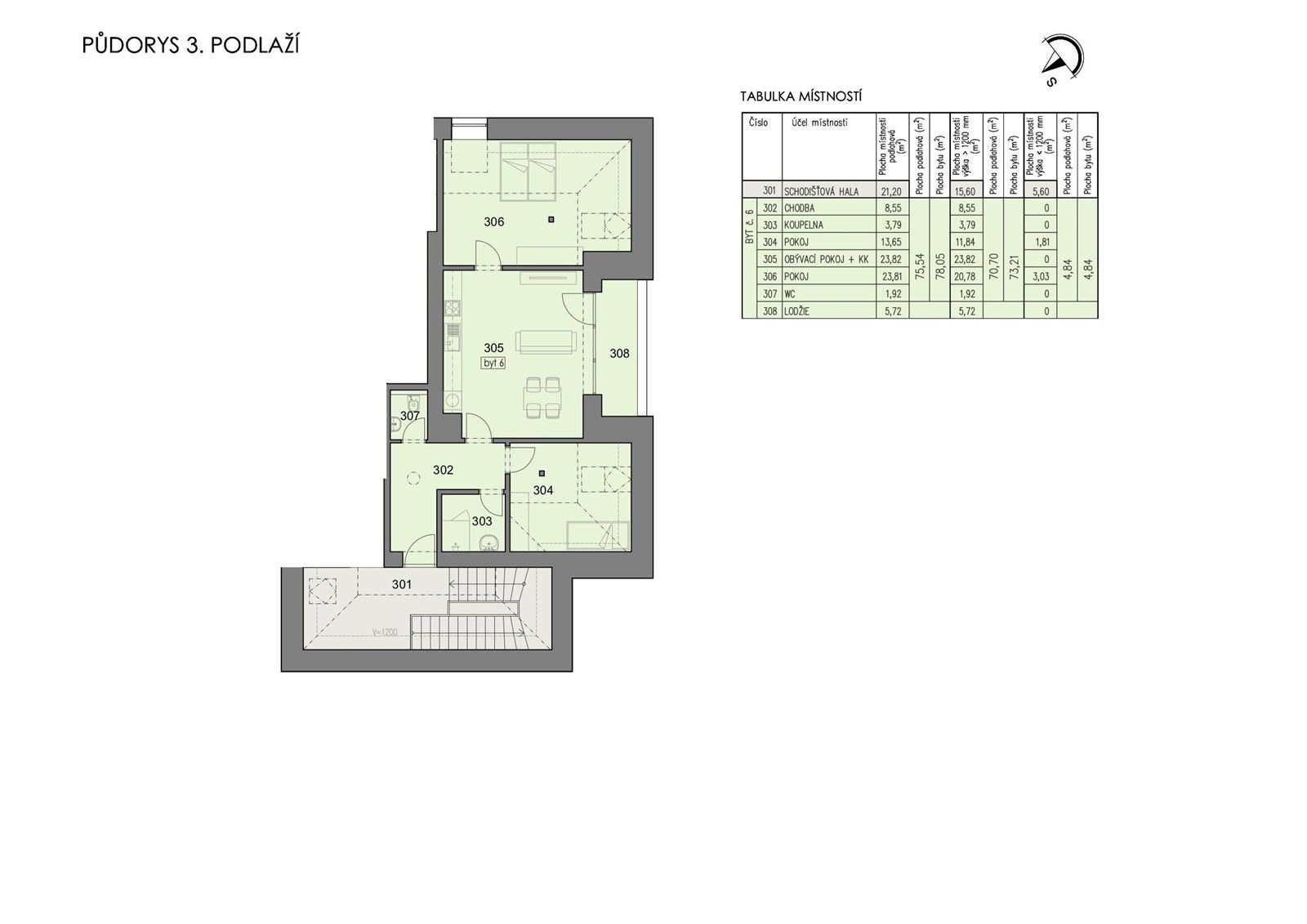
Nabízíme k prodeji exkluzivní byt 3+kk o ploše 77,68 m², který je součástí pečlivě připravovaného developerského projektu s kompletní rekonstrukcí bytového domu.
Rekonstrukce zahrnuje fasádu se zateplením, střešní konstrukci včetně krytiny, nová okna i společné prostory domu. Bytová jednotka č. 1 se nachází v 3. nadzemním podlaží bytového domu a díky jižní orientaci nabízí dostatek denního světla.
Tento podkrovní byt bude dokončen ve vysokém standardu – koupelna, kvalitní podlahové krytiny, interiérové dveře včetně zárubní. Samozřejmostí je možnost výběru materiálů a barevných provedení dle preferencí budoucího majitele.
O komfort bydlení se postará teplovodní podlahové vytápění, vytápění i ohřev vody zajistí centrální plynový kotel v domě.
V ceně je sklepní kóje a parkovací stání na vlastním pozemku.
Předpokládaný termín dokončení: leden 2027.
Energetická náročnost budovy: PENB – třída B.
Nemovitost je ideální volbou pro komfortní bydlení i jako dlouhodobá investice.
V případě zájmu mě neváhejte kontaktovat.
Parametry
- ID nabídky Realingo-2316-6
- Cihlová stavba
- Ve výstavbě
- 2. patro
- 73 m² užitné plochy
- 78 m² podlahové plochy
- 97 152 Kč za m² užitné plochy
- Osobní vlastnictví
- Lodžie
- Energeticky velmi úsporná (B)
- na Realingu
Co je v okolí
včetně kontaktních údajů na majitele
Jste inzerent?
Je toto vaše nabídka? Vylepšete ji a získejte více zájemců. Inzerování na Realingu je zdarma pro všechny.
Podobné nabídky v okolí
včetně kontaktních údajů na majitele
Jste inzerent?
Je toto vaše nabídka? Vylepšete ji a získejte více zájemců. Inzerování na Realingu je zdarma pro všechny.





