

3 250 000 Kč
Byt 2+kk, 42 m², U Oblouku, Ostrava
Ne vždy se Vám naskytne možnost bydlet v takto ikonickém domě, který zná snad každý. Je totiž kulturní památkou. Ano, bydlet v takovém domě může mít jisté nevýhody, avšak pojďme se podívat na výhody.
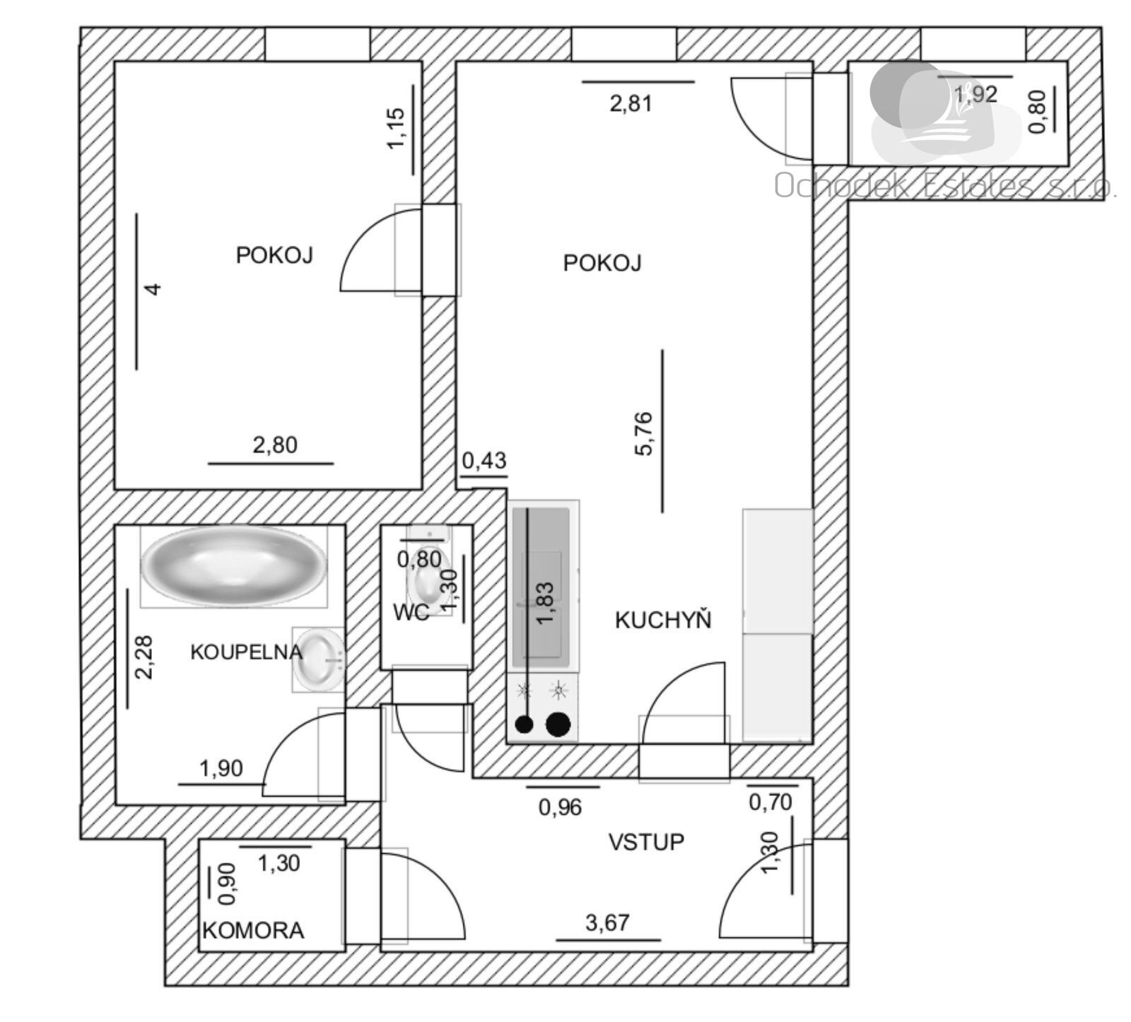
Byt o dispozici 2kk o výměře 42 m² se nachází v šestém nadzemním podlaží bytového domu. První důležitou výhodou je výtah. Nebudete mít tedy problém se ke svému bytu pohodlně dostat. Je však nutno zmínit, že dům není bezbariérový. Byt se prodává v původním plně funkčním stavu. Ovšem rekonstrukce by mu jistě slušela. Otevírá se zde tedy možnost upustit uzdu fantazie nového majitele a přizpůsobit si byt dle svých představ.
Po vstupu do bytu se ocitnete v malé, ale praktické chodbě. Z chodby již vstupujete do hlavní obytné místnosti, ve které vás ihned zaujme velkorysý kuchyňský kout a zároveň dostatek místa na vytvoření vaší odpočinkové zóny. Hnedle dveře do komory, dveře do koupelny a na samostatnou toaletu. Důležitou místností je neprůchozí ložnice. A i když byt není nafukovací, nachází se v něm malá místnůstka, která čeká na uplatnění nového majitele, třeba k vytvoření “zašívárny”.
Nachází se v lokalitě Ostrava – Poruba. Je to velmi příjemná lokalita disponující nejen spousty relaxačních míst v zeleni pro trávení volného času, ale hlavně veškerou občanskou vybaveností.
Pozn: Uvedená cena je BEZ zprostředkovatelského poplatku ve výší 150.000 Kč vč DPH pro RK. Financování pomůžeme zajistit. Energetický štítek prozatím uvádíme G
Parametry
- ID nabídky Realingo-25-06-003
- Cihlová stavba
- Dobrý stav
- 2. patro
- 42 m² užitné plochy
- 77 381 Kč za m² užitné plochy
- Osobní vlastnictví
- Energeticky mimořádně nehospodárná (G)
- na Realingu
- Aktualizace před 43 dny
Co je v okolí
včetně kontaktních údajů na majitele
Jste inzerent?
Je toto vaše nabídka? Vylepšete ji a získejte více zájemců. Inzerování na Realingu je zdarma pro všechny.
Podobné nabídky v okolí
3 250 000 Kč
Byt 2+kk, 42 m²
U Oblouku, Ostrava
včetně kontaktních údajů na majitele
Jste inzerent?
Je toto vaše nabídka? Vylepšete ji a získejte více zájemců. Inzerování na Realingu je zdarma pro všechny.







