

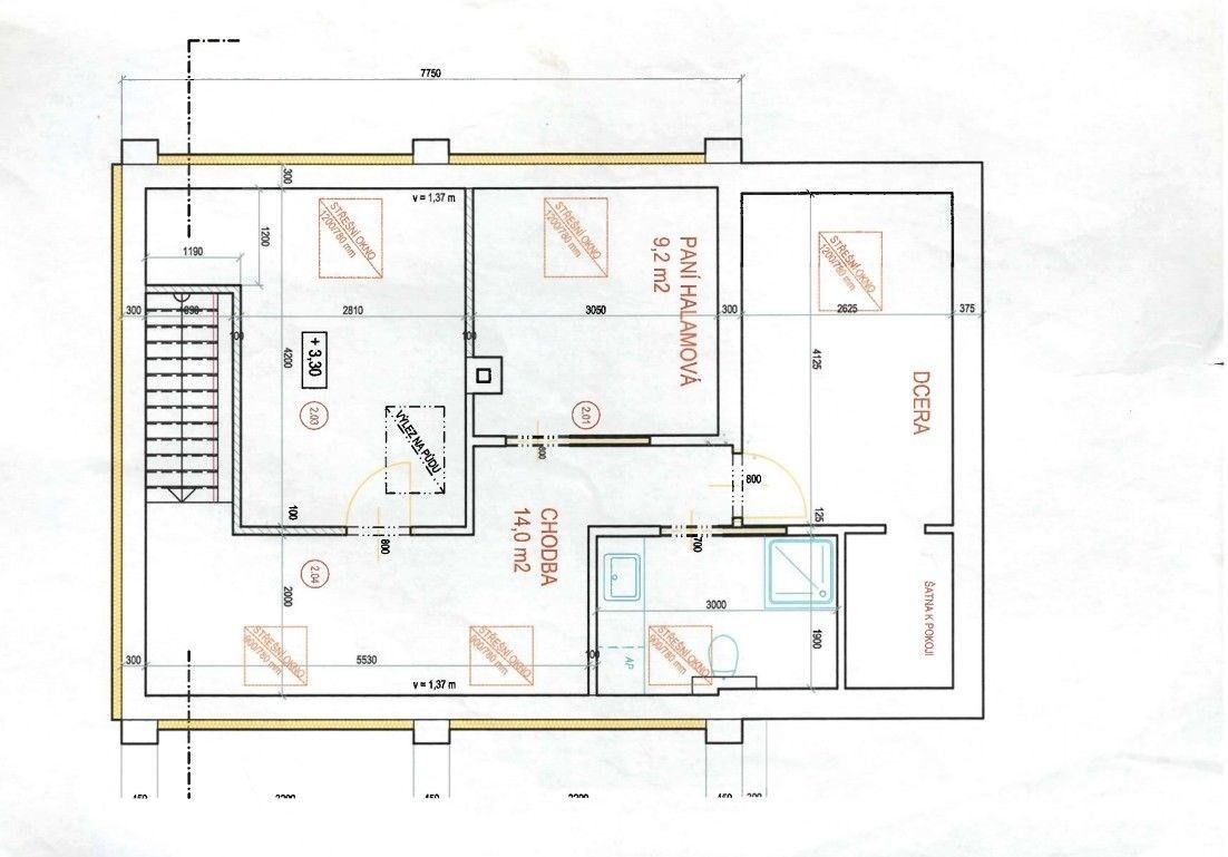
Prodám nízkoenergetický rodinný dům v Mořině o dispozici 5+1 s podlahovou plochou 132,3 m².Dům je určen pro pohodlný život až 6 členné rodiny. Bohatý vnitřní prostor zahrnuje v přízemí obývací pokoj s prakticky odděleným kuchyňským koutem a v patře ložnici a 2 dětské pokoje. Součástí rodinného domu je šatna, technická místnost, samostatné WC a samostatná koupelna.Dům bude za uvedenou cenu kompletně dokončen a vybaven (včetně krbového komínu) a připraven k okamžitému nastěhování. Vnější i vnitřní provedení domu provedeme dle Vašeho individuálního výběru (podl. krytiny, obklady, dlažby, sanitární keramika, vnější i vnitřní dveře a okna, barva a provedení fasády a střešní krytiny apod.).K patě pozemku jsou přivedeny tyto inženýrské sítě: rozvody NN, kanalizace, plynovod a vodovod. V celkové ceně není zahrnuta spodní stavba a domovní přípojky inženýrských sítí.Pozemek má výměru o rozloze 882 m². Uvedená cena je včetně pozemku a DPH. Doba výstavby je 4 – 5 měsíců.
Parametry
- ID nabídky Realingo-1409
- Cihlová stavba
- 132 m² užitné plochy
- 882 m² pozemku
- 85 144 Kč za m² užitné plochy
- Energeticky velmi úsporná (B)
- na Realingu
- Aktualizace před 17 dny
Co je v okolí
včetně kontaktních údajů na majitele
Jste inzerent?
Je toto vaše nabídka? Vylepšete ji a získejte více zájemců. Inzerování na Realingu je zdarma pro všechny.
Podobné nabídky v okolí
11 239 000 Kč
Rodinný dům, 132 m² + 882 m² pozemek
Mořina
včetně kontaktních údajů na majitele
Jste inzerent?
Je toto vaše nabídka? Vylepšete ji a získejte více zájemců. Inzerování na Realingu je zdarma pro všechny.







