

11 999 000 Kč
Rodinný dům, 108 m², Nehvizdy
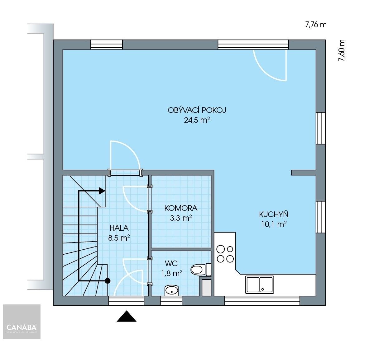
Nabízíme nový rodinný dům 4+1 (jedná se o samostatnou polovinu z dvojdomu s vlastním popisným číslem) s užitnou plochou 96 m², terasou 12 m² a pozemkem o rozloze 311 m². Dům nabízí dostatek místa pro pohodlný život 4 členné rodiny. V přízemí se nachází vstupní hala, prostorný obývací pokoj s kuchyní a jídelnou (s výstupem na terasu), toaleta a praktická komora. V 1. patře vstupujete z galerie do ložnice a 2 pokojů a do koupelny s toaletou. Za uvedenou cenu je dům kompletně stavebně dokončen. Vytápění je řešeno plynovým kondenzačním kotlem a v ceně domu je také krbový komín, který umožňuje nezávislé vytápění.V uvedené ceně je také zahrnuta nadstandardní příplatková výbava, kterou si můžete vybrat dle Vašich představ. Součástí příslušenství k rodinnému domu je přístupový a okapový chodník a terasa. Pohodlně je zde zajištěno i parkování pro 2 osobní automobily.Cena je konečná včetně pozemku a DPH. Součástí ceny není poplatek obci na rozvoj infrastruktury ve výši 100.000 Kč. Financování nejvýhodnější hypotékou Vám zajistíme zdarma. Termín dokončení je naplánovaný na jaro roku 2026.Městys Nehvizdy leží v těsném sousedství hlavního města Prahy, pouze 8 km od Horních Počernic. Obec je vyhledávaným místem pro život i podnikání s ideální dostupností k Praze. Díky sjezdu na dálnici D11, je centrum Prahy i obchodní a zábavní centrum Černý Most vzdálené jen pár minut jízdy. Spojení s Prahou zajišťuje také MHD (PID), přičemž na metro Černý Most se dostanete autobusem za pouhých 16 minut.Rádi Vám ukážeme vzorový dům – kontaktujte nás, objednejte se na prohlídku a získejte bližší informace o nových výhodách.Více informací o lokalitě naleznete na našich webových stránkách.
Parametry
- ID nabídky Realingo-1473
- Cihlová stavba
- Novostavba
- 108 m² užitné plochy
- 311 m² pozemku
- 111 102 Kč za m² užitné plochy
- Energeticky velmi úsporná (B)
- na Realingu
- Aktualizace před 37 dny
Co je v okolí
včetně kontaktních údajů na majitele
Jste inzerent?
Je toto vaše nabídka? Vylepšete ji a získejte více zájemců. Inzerování na Realingu je zdarma pro všechny.
Podobné nabídky v okolí
11 999 000 Kč
Rodinný dům, 108 m² + 311 m² pozemek
Nehvizdy
včetně kontaktních údajů na majitele
Jste inzerent?
Je toto vaše nabídka? Vylepšete ji a získejte více zájemců. Inzerování na Realingu je zdarma pro všechny.







