

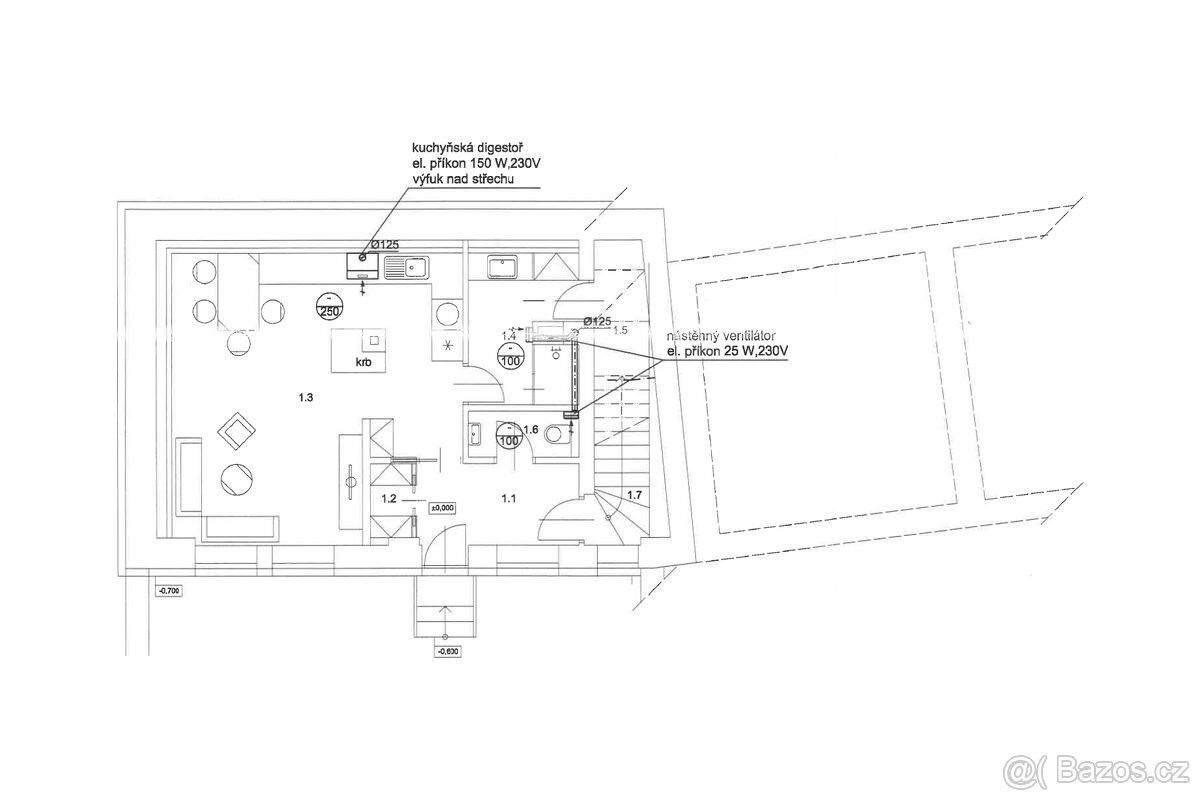
MOŽNOST VYUŽITÍ DOTACE. Dům splňuje podmínky pro získání dotace minimálně v hodnotě 600 tis. Kč ,,Oprav dům po babičce,, Nabízíme k prodeji dvoupodlažní rodinný dům s kompletním stavebním povolením, částečně situovaný ve svahu, který se nachází v obci Černé Voděrady - Praha východ. Dům je připraven k rekolaudaci na číslo popisné. Je určen k dokončení odpovídající projektové dokumentaci, která je součástí prodeje, přičemž vnitřní prostory jsou vybourány na obvodové zdi a připraveny k dokončení příček. Dům disponuje novou plechovou střechou včetně nového laťování a částečně nového krovu, jsou osazena nová plastová okna i světlík na půdě. Půdní prostory mají připravené nové podlahy z OSB desek a izolaci z minerální vaty. Dům má již nově instalovanou vjezdovou bránu i branku. Dokončení celkové rekonstrukce je odhadováno na 1,5 milionu Kč s využitím dotace. Za tuto investici můžete získat plnohodnotné rodinné bydlení za cenu menšího bytu v Praze. Jedná se o ideální příležitost pro ty, kdo hledají možnost vytvořit si prostorný domov o dispozici 5+kk se dvěma koupelnami, dvěma toaletami, technickou místností a garáží. Zastavěná plocha domu je 130m², užitná plocha přibližně 200 m² a k tomu náleží pozemek o velikosti 120 m². V přízemí se počítá s dispozicí, předsíní, WC a sprchovým koutem. Schodištěm se vystoupá do prvního patra, kde jsou plánovány tři pokoje, prostornější koupelna s vanou a WC, technická místnost a garáž. Díky svahovitému terénu se garáží prochází v úrovni prvního patra do přízemí, čímž jsou zajištěny dva samostatné vstupy do domu. Stavba je cihlová, napojená na vodovod, kanalizaci a elektřinu, přičemž všechny přípojky jsou již zhotovené. Vytápění je navrženo kotlem na pelety a elektrickým kotlem, což zajišťuje energeticky úsporný provoz. K dispozici je kompletní projektová dokumentace včetně vyjádření dotčených úřadů a PENB s výsledkem A mimořádně úsporná nemovitost.V rámci prodeje je možné zakoupit již pořízený materiál (sádrokartony, izolační vata, plechy pro střechu na garáži, plastová okna, terasové dveře, vstupní bezpečnostní dveře , kotel na pelety a topná tělesa do celého objektu). Nemovitost se nachází v obci Černé Voděrady v okrese Praha-východ. Tato lokalita nabízí klidné bydlení s výbornou dostupností do Prahy _ přibližně 25 minut jízdy _ a rychlé spojení do okolních měst, jako jsou Říčany, Mnichovice nebo Kostelec nad Černými Lesy. Černé Voděrady leží v malebné krajině přibližně 34 km jihovýchodně od centra Prahy a jsou známé chráněnou krajinnou oblastí Voděradské bučiny, která je ideální pro cyklistiku i pěší výlety V obci se nachází obecní úřad, restaurace, koupaliště a sportovní hřiště. Nejbližším městem s rozšířenou občanskou vybaveností jsou Mnichovice, vzdálené přibližně 8 km, kde jsou mateřské i základní školy.S vyřízením hypotéky vám rádi pomůžeme. PENB: A . Ev.č.: 40030562
Parametry
- na Realingu
- Dnes aktualizováno
Co je v okolí
včetně kontaktních údajů na majitele
Jste inzerent?
Je toto vaše nabídka? Vylepšete ji a získejte více zájemců. Inzerování na Realingu je zdarma pro všechny.
včetně kontaktních údajů na majitele
Jste inzerent?
Je toto vaše nabídka? Vylepšete ji a získejte více zájemců. Inzerování na Realingu je zdarma pro všechny.


