

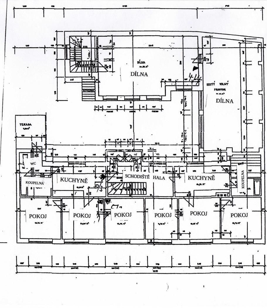
Cena k jednání-možnost slevy. Poslední možnost do 30.9.2025 pak se nemovitost nebude již prodávat. Exklusivní prodej - velmi zajímavé víceúčelové komerční nemovitosti s velkým využitelným potenciálem - Napajedla Svatoplukova - 2 byty, kanceláře, obchodní, výrobní, skladové prostory, šatny, dílny, terasy, dvory a átria atd. Dispozice: v přízemí do ulice jsou obchodní prodejní prostory - vhodné jako obchodní prodejní prostory, kanceláře, ordinace atd., dozadu jsou skladové nebo výrobní prostory, atria. Horní patro: 2 byty. Možnost předělat na byty nebo více možností využití.Přípoj na dálnici. Doporučujeme prohlídku, financování vyřizujeme na míru. Cena k jednání-možnost slevy. Poslední možnost do 30.9.2025 pak se nemovitost nebude již prodávat. Třída energetické náročnosti: G - Mimořádně nehospodárná (dle vyhláška č. 264/2020 Sb.) Cena: 12 990 000 Kč
Parametry
- na Realingu
- Dnes aktualizováno
Co je v okolí
včetně kontaktních údajů na majitele
Jste inzerent?
Je toto vaše nabídka? Vylepšete ji a získejte více zájemců. Inzerování na Realingu je zdarma pro všechny.
Podobné nabídky v okolí
včetně kontaktních údajů na majitele
Jste inzerent?
Je toto vaše nabídka? Vylepšete ji a získejte více zájemců. Inzerování na Realingu je zdarma pro všechny.







