

Dvoupodlažní zděný rodinný dům o dispozici 5+1 s užitnou plochou 131 m², který se nachází v klidné obci Babice u Uherského Hradiště. Dům stojí na pozemku o celkové výměře 296 m² a nabízí příjemné rodinné bydlení s vlastní zahradou o velikosti 155 m², která poskytuje příjemný prostor pro relax, posezení nebo dětské hry..
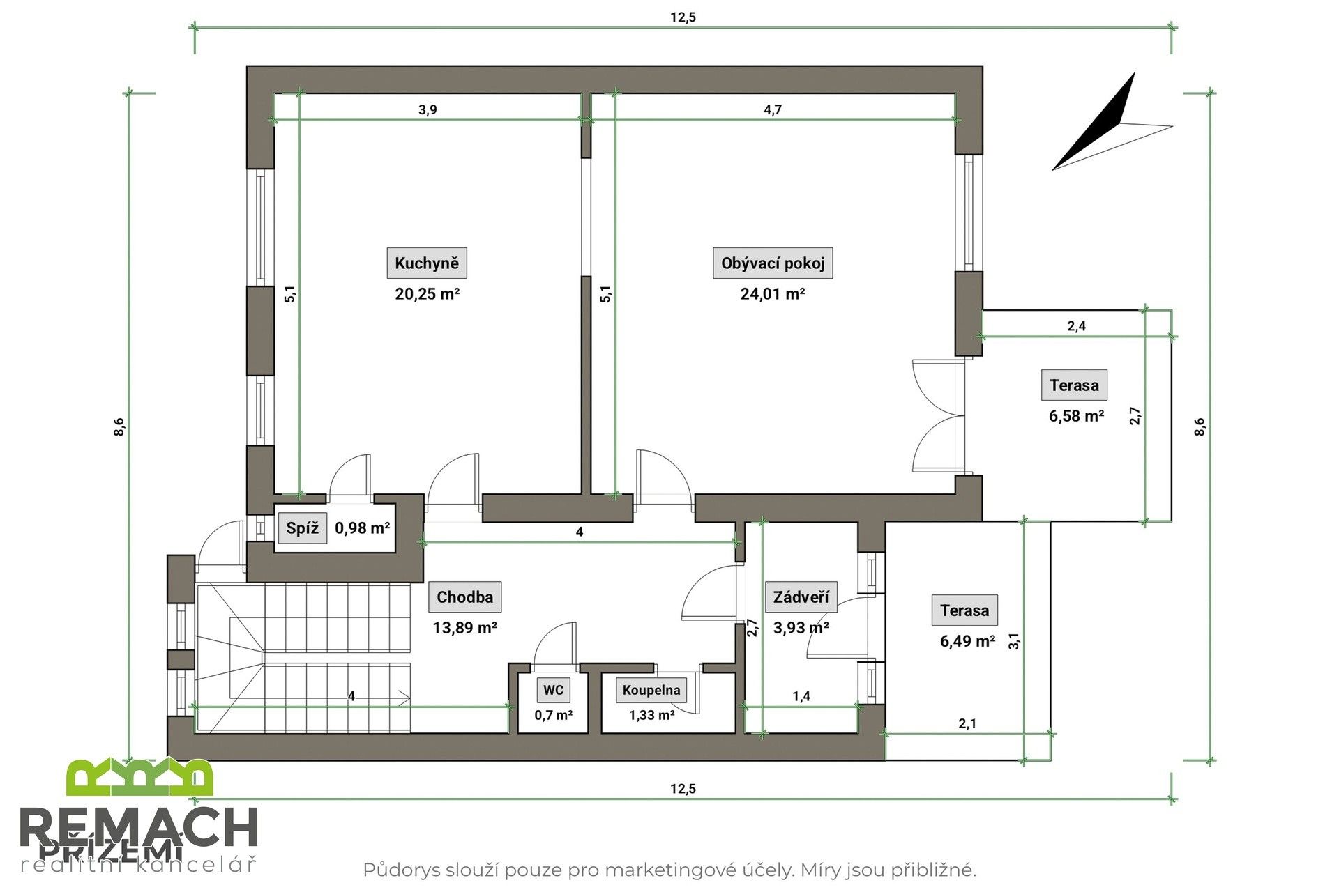
Dům má dvě obytná podlaží s dostatkem prostoru pro větší rodinu a navíc s možností úprav podle vlastních představ. V prvním nadzemním podlaží se nachází vstupní chodba, první koupelna se sprchovým koutem, samostatná toaleta, obývací pokoj a kuchyně s jídelním koutem. Kuchyni lze dispozičně propojit s obývacím pokojem a vytvořit tak moderní otevřený prostor s dispozicí 5+kk. Ve druhém nadzemním podlaží jsou situovány čtyři pokoje a druhá koupelna, tentokrát s vanou. Jeden z pokojů má navíc vstup na balkon.
Dům je celopodsklepený a díky tomu vám suterén nabízí praktické technické a skladovací zázemí domu. Je zde krom jiného garáž pro jedno auto, ze které je možné projít z ulice přímo na zahradu. Dále prádelna, sklepní a skladovací prostory vhodné například pro dílnu, sklad nebo technickou místnost.
Parkování je možné nejen v garáži, ale také před domem, kde jsou k dispozici další dvě parkovací místa. Vytápění domu je řešeno elektrokotlem nebo kotlem na tuhá paliva. Dům je napojen na veřejný vodovod a na zahradě se navíc nachází vlastní studna, která může sloužit například k zalévání.
Babice u Uherského Hradiště jsou vyhledávanou lokalitou pro rodinné bydlení díky své klidné atmosféře a zároveň výborné dostupnosti do Uherského Hradiště. Obec nabízí kompletní občanskou vybavenost včetně školy, školky, obchodů, restaurací a sportovního vyžití. Okolí je ideální pro milovníky přírody, procházek i cyklovýletů.
Parametry
- ID nabídky Realingo-03416
- Cihlová stavba
- Velmi dobrý stav
- Řadový
- Patrový
- Přízemní budova s 1 podzemním patrem
- 131 m² užitné plochy
- 296 m² pozemku
- 155 m² zahrady
- 99 m² zastavěné plochy
- 41 221 Kč za m² užitné plochy
- Vybaveno nábytkem
- Balkón, lodžie, terasa a sklep
- Energeticky mimořádně nehospodárná (G)
- Přípojky: elektřina a kanalizace
- Možnost parkování v garáži
- Vlastní garáž
- Mimo záplavovou oblast
- na Realingu




