

1 799 999 Kč
Rodinný dům, 165 m², Bratříkov, Pěnčín
Tento dům a nového majitele čeká rekonstrukce. Pro pohodlný průběh nechal současný majitel vytvořit kompletní projekt, který počítá s exteriérovými a interiérovými úpravami domu.
V rámci obálky domu zateplení, novou střechu, ale i přesunutí vstupu do domu, aby bylo vše pohodlné a odpovídalo moderním standardům bydlení. Přibylo parkovací stání a je počítáno s vybudování čističky odpadních vod, stejně tak i tepelného čerpadla.
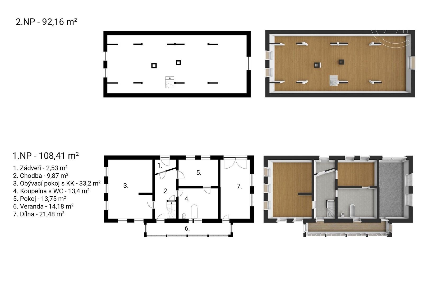
Interiér je vyprojektován pro pohodlné bydlení čtyřčlenné rodiny. Dá se říci, že nezůstal kámen na kameni a mění se tak dispozice jak prvního, tak i druhého nadzemního podlaží. V projektu je kladen důraz na klidovou část domu orientovanou v druhém nadzemním podlaží a společný prostor v přízemí. K tomu slouží i propojení jídelny s kuchyňskou linkou se zamýšleným výhledem do zeleně a zbylo místo i na společenskou místnost.
Pokud nový majitel dodrží navrhovaný postup a technologie, je energetická náročnost budovy vypočítána na druhou nejlepší třídu, tedy B.
Statika objektu bez závažných vad.
Zahrada náležící k domu má přes tisíc metrů a díky svažitému profilu terénu, lze vybudovat moderní kaskádové terasy.
Noví majitelé mají možnost čerpat z dotačních programů na rekonstrukci nemovitosti a také převzít velkmi výhodný úvěr pro financování této nemovitosti.
Schválený projekt je součástí prodeje tohoto domu. Rád jej poskytnu na prohlídce tohoto domu, kde zároveň vyřešíme detaily financování a projdeme veškeré náležitosti a možnosti této nemovitosti.
Těším se na viděnou, Vladimír Řehák.
Parametry
- ID nabídky Realingo-965087
- Cihlová stavba
- Před rekonstrukcí
- 165 m² užitné plochy
- 1 m² pozemku
- 152 m² zastavěné plochy
- 10 909 Kč za m² užitné plochy
- Osobní vlastnictví
- Balkón
- Energeticky mimořádně nehospodárná (G)
- Přípojky: elektřina a kanalizace
- na Realingu
- Včera aktualizováno
Co je v okolí
včetně kontaktních údajů na majitele
Jste inzerent?
Je toto vaše nabídka? Vylepšete ji a získejte více zájemců. Inzerování na Realingu je zdarma pro všechny.
1 799 999 Kč
Rodinný dům, 165 m² + 1 m² pozemek
Bratříkov, Pěnčín
včetně kontaktních údajů na majitele
Jste inzerent?
Je toto vaše nabídka? Vylepšete ji a získejte více zájemců. Inzerování na Realingu je zdarma pro všechny.



