

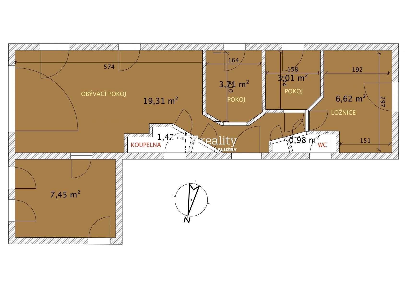
Prodává se dům před rekonstrukcí se zastavěnou plochou 91 m². Dům má 3 samostatné pokoje a navíc samostatnou kuchyň. A teď to hlavní:
1. Velký suchý kamenný sklep cca 80 m²
2. Nejnižší cena za podobné domy v okolí
3. Masivní cihlové nosné zdi
4. Napojení na veřejnou kanalizaci
5. Velmi klidná, málo frekventovaná ulice
Dům stojí na rohovém pozemku a má přímý přístup z veřejné komunikace. Konstrukčně je ve velmi solidním stavu – žádné provizorní dřevo, ale poctivé zdivo. Sklep je prostorný. Objekt je určený k celkové rekonstrukci, ale nabízí jasný potenciál pro moderní bydlení nebo investici.
Tahle nemovitost je typ „vezmu levně a udělám po svém“. V téhle lokalitě se podobné domy objevují málokdy – a už vůbec ne za tuto cenu.
Parametry
- ID nabídky Realingo-427216
- Kamenná stavba
- Velmi dobrý stav
- 160 m² užitné plochy
- 387 m² pozemku
- 240 m² podlahové plochy
- 91 m² zastavěné plochy
- 9 369 Kč za m² užitné plochy
- Energeticky mimořádně nehospodárná (G)
- Přípojky: elektřina a kanalizace
- na Realingu
Co je v okolí
včetně kontaktních údajů na majitele
Jste inzerent?
Je toto vaše nabídka? Vylepšete ji a získejte více zájemců. Inzerování na Realingu je zdarma pro všechny.
1 499 000 Kč
Splátka od 6 223 Kč měsíčně (úrok 4,64 %)Rodinný dům, 160 m² + 387 m² pozemek
Mikulášovice
včetně kontaktních údajů na majitele
Jste inzerent?
Je toto vaše nabídka? Vylepšete ji a získejte více zájemců. Inzerování na Realingu je zdarma pro všechny.



