

Nabízíme k prodeji rodinný dům v luxusní rezidenci tří řadových domů v klidné lokalitě Újezd nad Lesy.
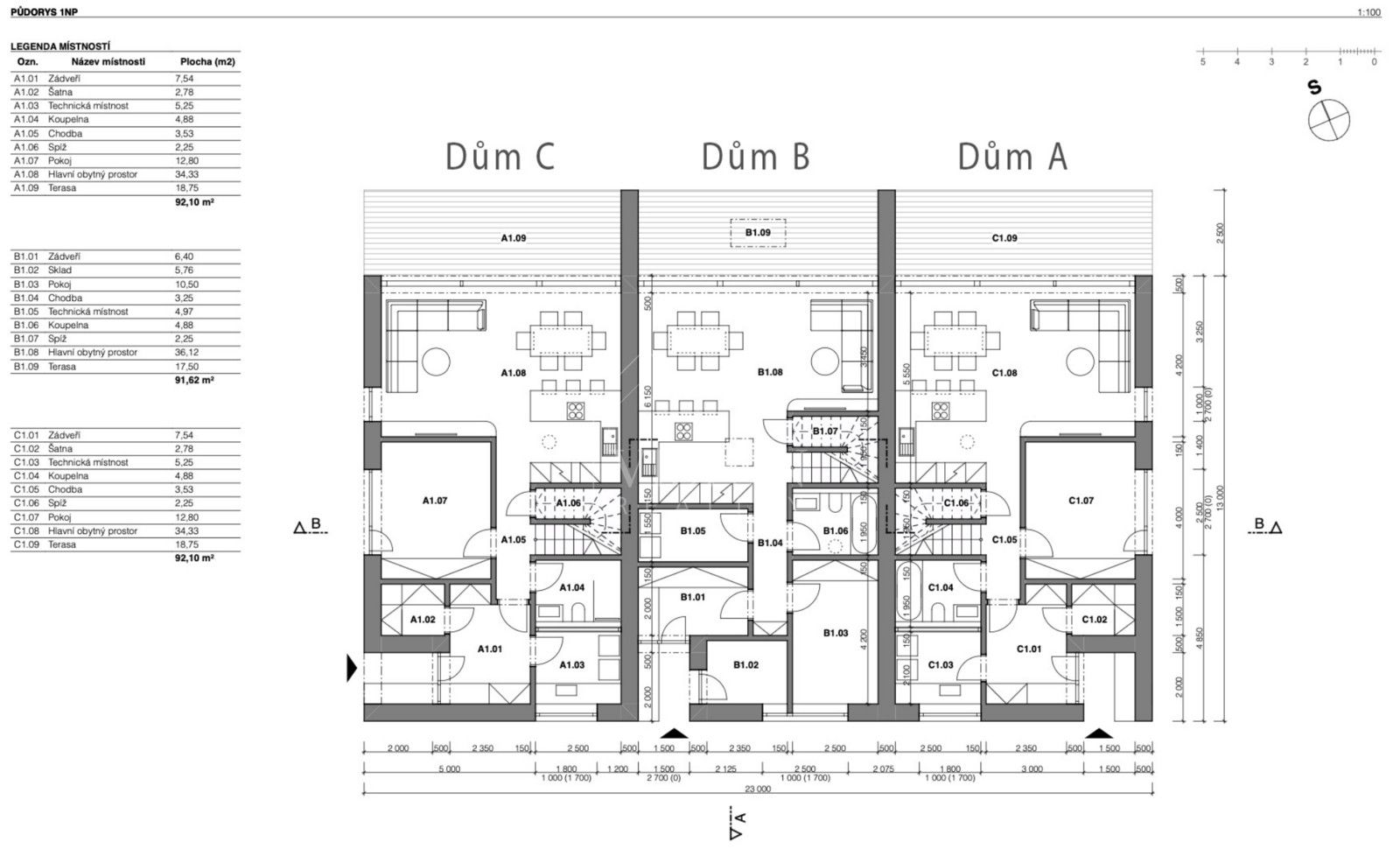
Tento luxusní rohový dům o užitné ploše 148 m² nabízí dispozici 5+kk a 3 koupelny s velkoformátovou keramikou. Dominantou tohoto domu je nejen ve spodním patře průhled do zeleně z obývacího pokoje s přímým vstupem do zahrady o rozloze 70 m², ale také velká terasa o ploše 19m² nacházející se v horním patře. V domě jsou dřevěné podlahy s podlahovým vytápěním a příprava pro klimatizaci. Zateplení, trojskla což znamená energeticky úsporné řešení. Rekuperace pro zdravé vnitřní prostředí, příprava na solární systém a dobíjení elektromobilů. Dále také elektrické předokenní rolety a optický internet.
Dům nabízí prémiové standardy a značkové vybavení, ale zároveň nízké provozní náklady a kvalitní zateplení. S možností klientských změn během výstavby.
U každého domu jsou 3 parkovací stání. Ale vzhledem k výhodné lokalitě se rychlým vlakem S1 dostanete do centra - Masarykovo nádraží cca za 20 minut. Lokalita nabízí veškerou občanskou vybavenost v dosahu - školy, školky, obchody i lékaři. Dále také sportovní vyžití - cyklostezky a Klánovický les máte jen pár kroků od domu.
Každý z těchto domů je navržen s důrazem na komfort, funkčnost a luxusní styl života.
Termín dokončení : léto 2026.
Záruka developera, pojištěná výstavba.
Pokud Vás tato nabídka zaujala, neváhejte nás kontaktovat.
Parametry
- ID nabídky Realingo-401
- Jiný druh stavby
- Novostavba
- 148 m² užitné plochy
- 155 m² pozemku
- 165 m² podlahové plochy
- 85 m² zastavěné plochy
- 141 824 Kč za m² užitné plochy
- Energeticky velmi úsporná (B)
- Přípojky: elektřina a kanalizace
- na Realingu
- Dnes aktualizováno
Co je v okolí
včetně kontaktních údajů na majitele
Jste inzerent?
Je toto vaše nabídka? Vylepšete ji a získejte více zájemců. Inzerování na Realingu je zdarma pro všechny.
Podobné nabídky v okolí
včetně kontaktních údajů na majitele
Jste inzerent?
Je toto vaše nabídka? Vylepšete ji a získejte více zájemců. Inzerování na Realingu je zdarma pro všechny.







