

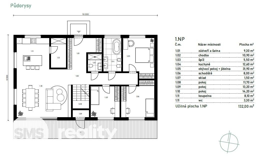
Hledáte klid, prostor a nadstandardní bydlení? Nabízíme jedinečnou příležitost pro náročné zájemce, kteří hledají moderní, prostorné a energeticky úsporné bydlení v krásné venkovské lokalitě. Součástí nabídky je stavební pozemek ve Střížově u Vladislavi a nadstandardně velká dřevostavba 6+kk s užitnou plochou 220 m².Rodinný dům je navržen jako nízkoenergetická dřevostavba z prefabrikovaných rámových stěnových panelů. Jedná se o hrubou stavbu, u které lze individuálně domluvit její dokončení. Dispozice i vzhled domu může stavební firma upravit podle přání klienta. Realizace hrubé stavby je do 4 měsícůPozemek se nachází v klidné lokalitě 10 km od Třebíče. Ze Střížova jezdí autobus do Vladislavi i Třebíče, ve Vladislavi (3 km) je vlakové spojení do Třebíče, Brna i Náměště nad Oslavou a kompletní občanská vybavenost: škola, školka, lékař, pošta, knihovna i sportovní zázemí.Na pozemku je vodovodní a kanalizační přípojka, elektřinu je nutné vyřídit. Přístup na pozemek je z obou stran - z obecní komunikace i z polní cesty.Pro lepší představu přikládám vizualizaci domu, umístění na pozemku a půdorysy obou podlaží.Pro více informací mne neváhejte kontaktovat.ev.č.: 1748poloha objektu: Samostatnýdruh objektu: Dřevostavbastav objektu: Novostavbaumístění objektu: Okraj obcetyp domu: Patrovývelikost: 5 a více pokojůužitná plocha (m²): 220plocha parcely (m²): 2041
Parametry
- na Realingu
Co je v okolí
včetně kontaktních údajů na majitele
Jste inzerent?
Je toto vaše nabídka? Vylepšete ji a získejte více zájemců. Inzerování na Realingu je zdarma pro všechny.
včetně kontaktních údajů na majitele
Jste inzerent?
Je toto vaše nabídka? Vylepšete ji a získejte více zájemců. Inzerování na Realingu je zdarma pro všechny.


