

Cena dohodou
Obchodní prostory, 144 m², Sokolovská, Praha
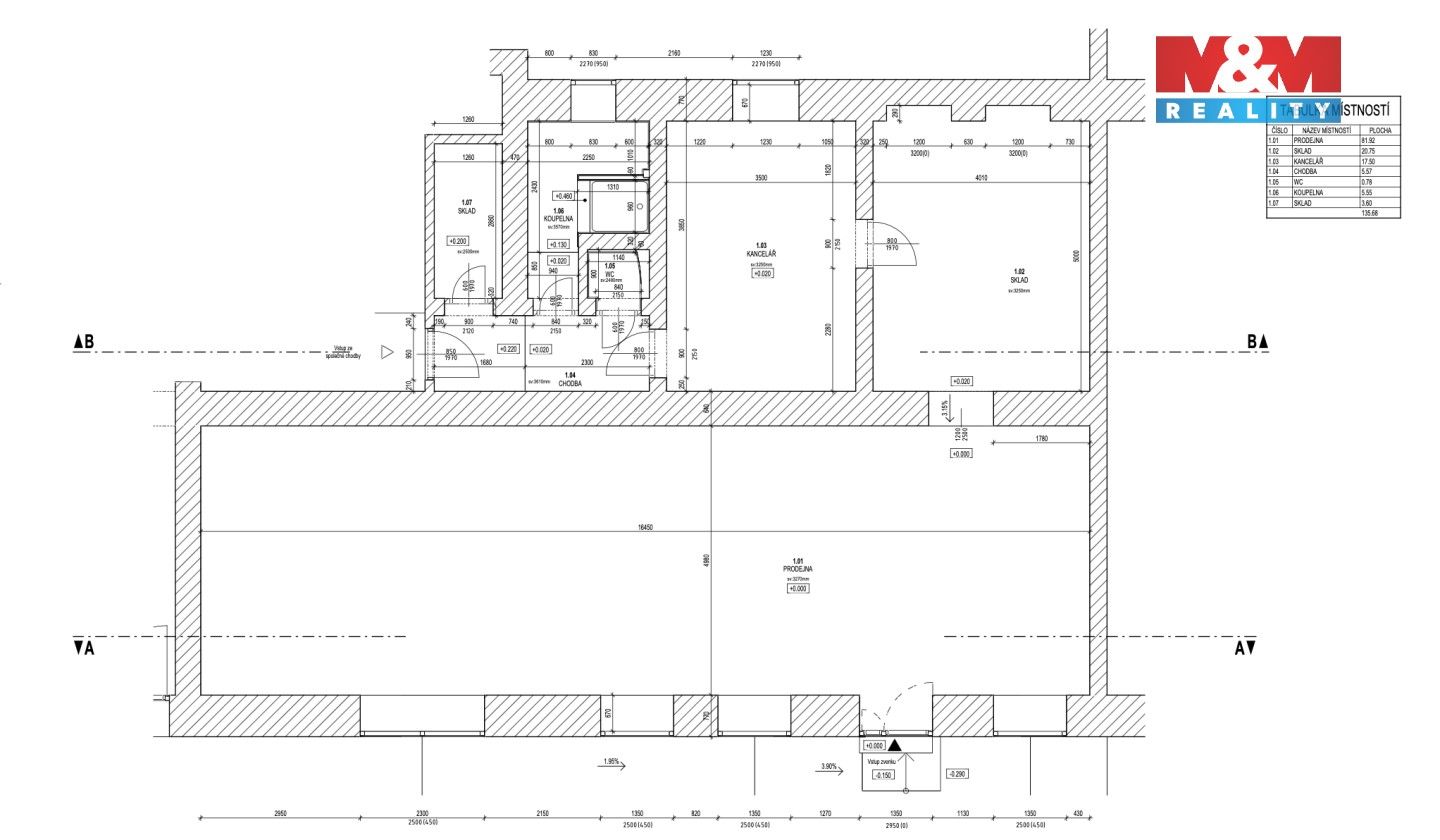
Nabízíme k prodeji soubor nebytových prostor o celkové užitné ploše 144 m², situovaných v 1. nadzemním podlaží cihlové budovy. Prostor se nachází na frekventované křižovatce kousek od metra Palmovka a zastávek tramvají a autobusů, což zajišťuje výbornou dopravní dostupnost pro klienty.
Tento prostor je také ideální pro zřízení lékařské ordinace nebo soukromé kliniky, současně je vydáno stavební povolení pro zřízení neurologické ordinace.
Prostor disponuje dvěma vchody: jeden je z ulice a druhý je ze zadní části s možností vybudování bezbariérového přístupu, což je klíčové zejména pro zdravotnická zařízení.
K nebytovým prostorům náleží dvě parkovací stání ve vnitrobloku, což představuje v této části Prahy výraznou konkurenční výhodu pro personál i klienty.
Nemovitost je určena k rekonstrukci, což umožňuje přizpůsobit interiér podle specifických potřeb a představ nového majitele.
Nepropásněte tuto příležitost, jak získat prostor v srdci Libně pro své podnikání.
Parametry
- ID nabídky Realingo-928681
- Cihlová stavba
- Dobrý stav
- Přízemí (z 3 pater)
- 144 m² užitné plochy
- Nevybaveno nábytkem
- Osobní vlastnictví
- 2 místnosti
- Odpad: veřejná kanalizace
- Elektřina: 230 V a 400 V
- Možnost parkování na pozemku a v garáži
- na Realingu
- Aktualizace před 46 dny
Co je v okolí
Kontaktujte makléře ihned
Ing. Katariina Kofanova
M & M reality holding
Napsat dotaz či poptávku
Podobné nabídky v okolí
Cena dohodou
Obchodní prostory, 144 m²
Sokolovská, Praha
Kontaktujte makléře ihned
Ing. Katariina Kofanova
M & M reality holding







