

Hledáte klidné místo pro stavbu svého rodinného domu s výbornou dostupností do Prahy i větších měst? Máme pro vás ideální pozemek v obci Běštín (okres Beroun), který splní vaše představy o pohodovém bydlení uprostřed přírody.
Pozemek o velikosti 1218 m² se nachází v zastavěné části obce mezi rodinnými domy a nabízí dostatek prostoru nejen pro dům, ale i zahradu nebo rekreační zónu. Klidná lokalita s minimálním provozem je ideální pro rodiny s dětmi, seniory nebo všechny, kdo hledají únik z ruchu města.
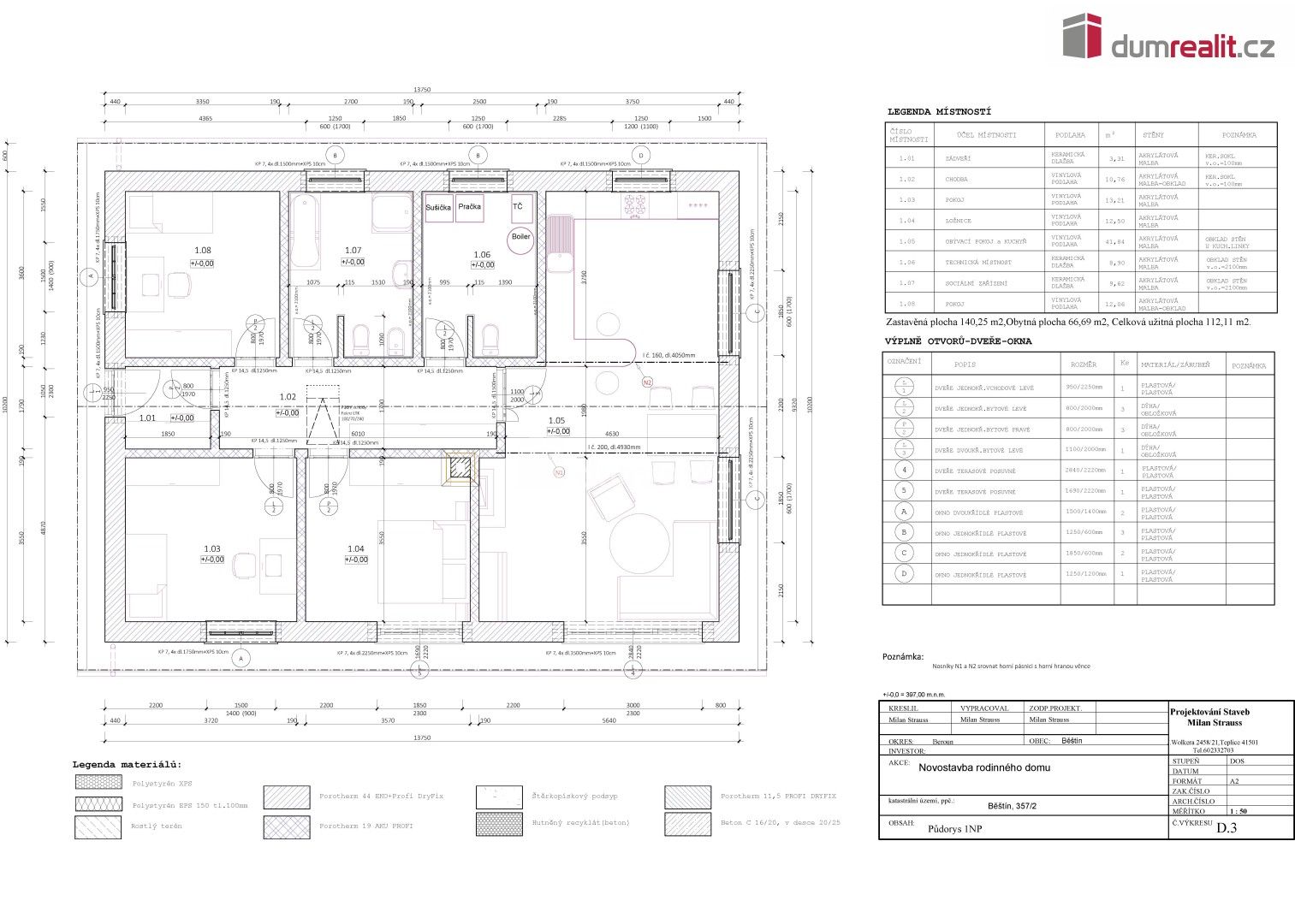
K pozemku je vypracovaný projekt na čističku odpadních vod a studnu, což výrazně urychlí a zjednoduší proces výstavby. Aktuálně je zpracovávána projektová dokumentace pro stavební povolení, která je zahrnuta v ceně prodeje. Technická infrastru.
Výhody lokality:
Škola, školka, obchod, pošta a restaurace ve vedlejší obci Hostomice (cca 3 km)
Skvělá dostupnost: 26 km od Berouna, 18 km od Příbrami, 13 km od Dobříše
Dopravní spojení přes PID (Pražská integrovaná doprava) – zastávky přímo v obci: Běštín, škola a Běštín, transformátor
Autobusové spojení do okolních měst: Hostomice, Jince, Řevnice, Černošice, Praha, Žebrák, Hořovice
Rychlé napojení na dálnici D4 i silnici I/115
Bonus: Výborné spojení a občanská vybavenost, ale zároveň klid a příroda doslova za domem. Místo jako stvořené pro rodinný život nebo víkendové útočiště.
Neváhejte mě kontaktovat pro více informací nebo domluvení prohlídky. Ráda vám s celým procesem pomohu. Ev. číslo: 648502.
Parametry
- ID nabídky Realingo-649116
- 1 190 m² pozemku
- 3 500 Kč za m² pozemku
- Přípojky: elektřina
- na Realingu
- Aktualizace před 61 dny







