

4 012 800 Kč
Pozemek pro bydlení, 1 m², Kladruby, Chlumec nad Cidlinou
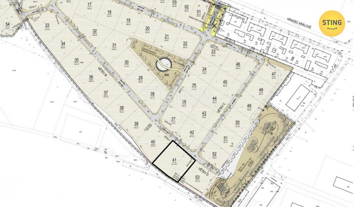
Hledáte stavební pozemek s dostatečným místem kolem svého budoucího domu? Nabízíme Vám ke koupi parcelu s výměrou 1216 m² v projektu rodinné zástavby v Chlumci nad Cidlinou s výhledem na zámek. Inženýrské sítě jako přípojka elektrické energie s hodnotou jištění 25A, přípojka splaškové kanalizace, přípojku pitné vody jsou zakončeny na hranici pozemku. Každá nově vzniklá stavba bude mít možnost napojení na optickou síť pro připojení internetu a datových služeb. K pozemkům jsou vybudovány sjezdy z vnitřní sítě příjezdových komunikací.
Parametry
- ID nabídky Realingo-123853
- 1 m² pozemku
- 4 012 800 Kč za m² pozemku
- na Realingu
- Aktualizace před 56 dny
Co je v okolí
včetně kontaktních údajů na majitele
Jste inzerent?
Je toto vaše nabídka? Vylepšete ji a získejte více zájemců. Inzerování na Realingu je zdarma pro všechny.
Podobné nabídky v okolí
4 012 800 Kč
Pozemek pro bydlení, 1 m²
Kladruby, Chlumec nad Cidlinou
včetně kontaktních údajů na majitele
Jste inzerent?
Je toto vaše nabídka? Vylepšete ji a získejte více zájemců. Inzerování na Realingu je zdarma pro všechny.







