

Hledáte místo, kde můžete začít stavět hned?
Nabízíme pozemek o výměře 621 m² v klidné části obce Ledečko (okres Kutná Hora) – jen pár minut od řeky Sázavy.
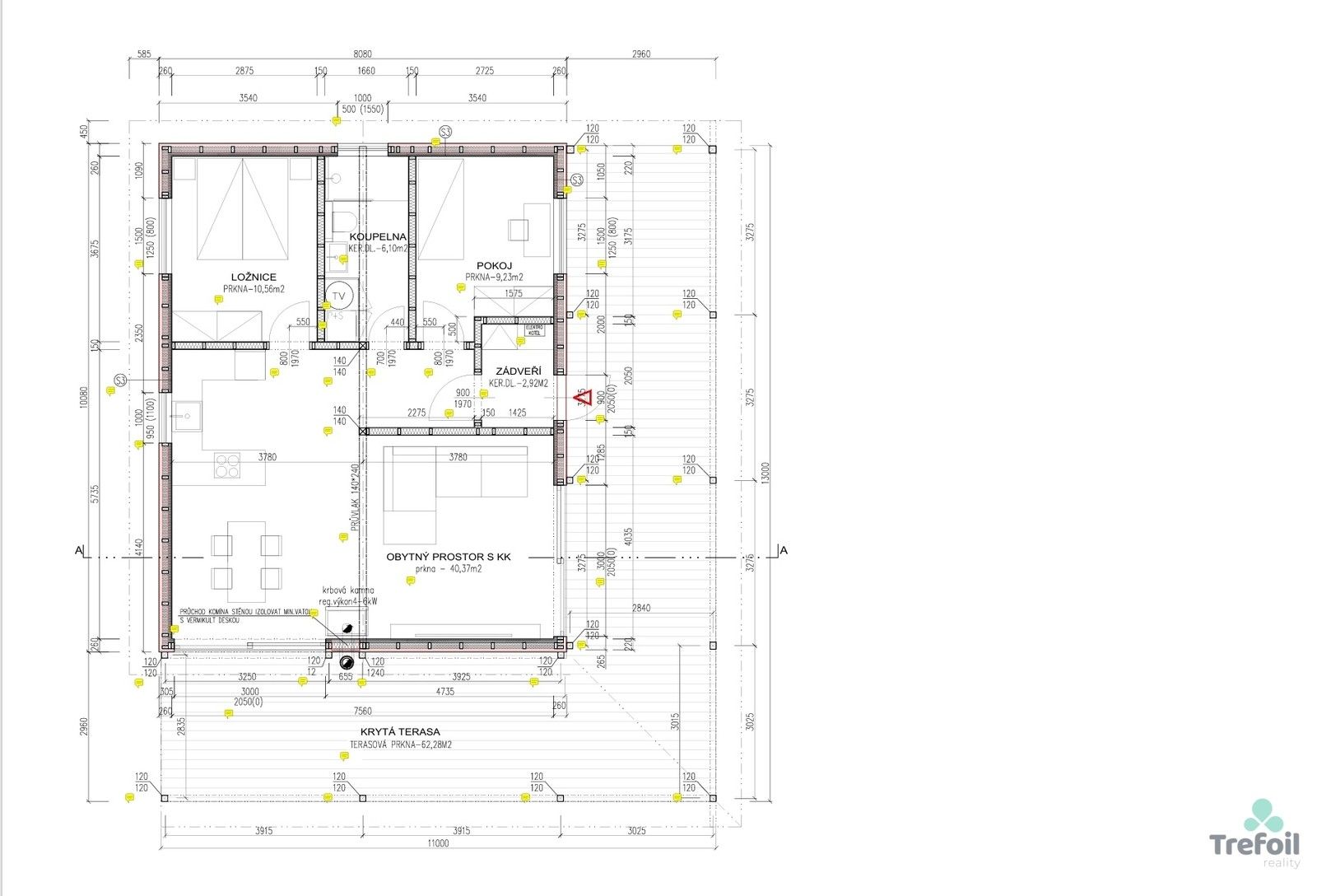
Součástí nabídky je kompletní projekt přízemního domu a platné stavební povolení, takže se můžete pustit do výstavby okamžitě, bez zdlouhavého papírování.
Na pozemku je přivedena elektřina. Je nutné vybudovat vlastní studnu a septik. Přístup je po obecní komunikaci.
? Projekt domu
Součástí nabídky je projekt moderní dřevostavby s podlahovým vytápěním a elektrokotlem.
Zastavěná plocha činí 142 m² (včetně terasy).
Dispozice:
Obývací pokoj s kuchyňským koutem – 40,4 m², 2 ložnice, koupelna, zádveří
Terasa kolem jižní a západní části domu – 61 m²
? Lokalita
Ledečko leží v malebném prostředí Posázaví, zhruba 50 km od Prahy.
V obci je železniční stanice s přímým spojením do Prahy, což zajišťuje pohodlné dojíždění.
V blízkosti se nachází města Sázava (7 km) a Rataje nad Sázavou (3 km) s veškerou občanskou vybaveností.
Okolí nabízí turistiku, cyklostezky, vodní sporty i klid pro odpočinek.
Ledečko je ideální volbou pro ty, kteří hledají klidné bydlení v přírodě, aniž by se vzdali komfortu města.
Parametry
- ID nabídky Realingo-144
- 621 m² pozemku
- 4 010 Kč za m² pozemku
- na Realingu
- Aktualizace před 20 dny
Co je v okolí
včetně kontaktních údajů na majitele
Jste inzerent?
Je toto vaše nabídka? Vylepšete ji a získejte více zájemců. Inzerování na Realingu je zdarma pro všechny.
Podobné nabídky v okolí
včetně kontaktních údajů na majitele
Jste inzerent?
Je toto vaše nabídka? Vylepšete ji a získejte více zájemců. Inzerování na Realingu je zdarma pro všechny.







