

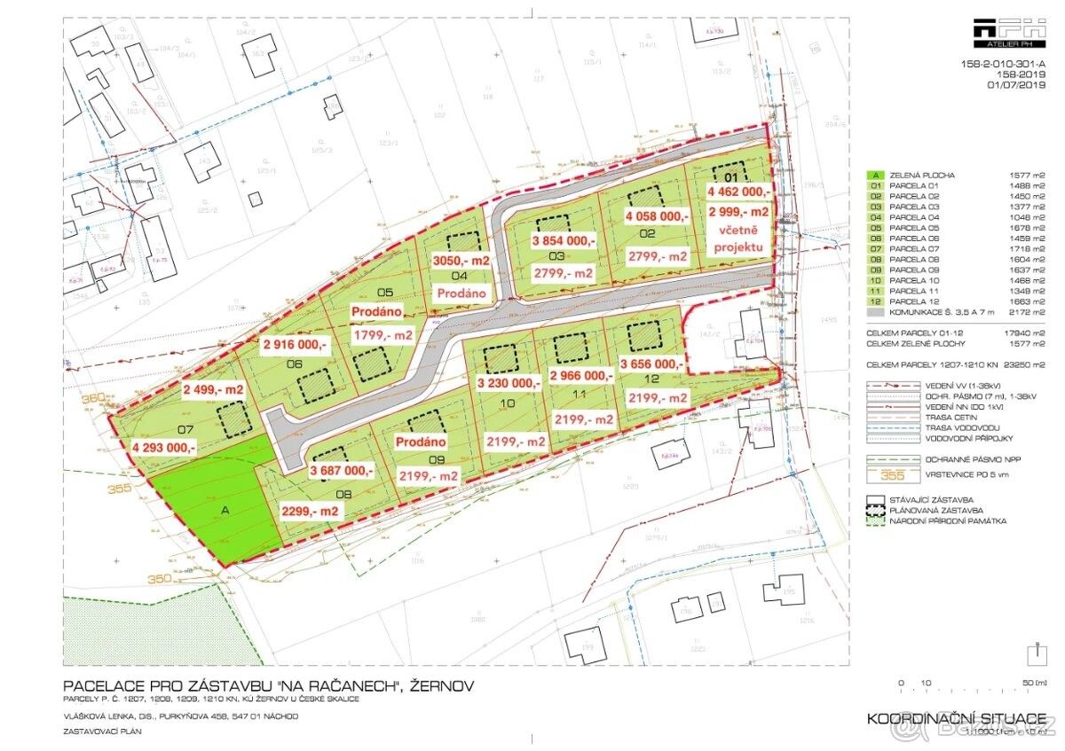
Stavební pozemky s výhledem na Rozkoš a Www.bydletzernov.comBabiččino údolí – připraveno ke stavběNabízím k prodeji exkluzivní stavební pozemky v klidné lokalitě městyse Žernov u České Skalice. Jedinečné místo pro život v přírodě s výbornou dostupností.Proč stavět právě zde?• Unikátní výhledy: Panorama vodní nádrže Rozkoš, Babiččina údolí a okolních lesů.• Připravenost: Vodovodní i elektrické přípojky (dimenzované pro FVE a elektromobily) jsou již hotové na každém pozemku.• Komfort: Zpevněné příjezdové cesty, opěrné stěny a veřejné osvětlení (podzemní vedení) – finální asfaltový povrch 2026/2027.• Bonus v ceně: Hydrogeologická a radonová zpráva, digitální výškopis a kompletní právní servis.Parametry:• Výměry: Velkorysé parcely cca od 1 350 m² do 1 700 m².• Ceny: Od 2 916 000 Kč (včetně DPH a služeb).• Odpad: Řešeno individuální ČOV (obec nemá kanalizaci).Pozemky jsou volně přístupné k prohlídce. Projděte se pěšky do Babiččina údolí nebo k Rýzmburku a nasajte atmosféru místa.Více informací na: www.bydletzernov.comKontakt: Jindřich Vlášek, tel.: 773 000 320Dojezdové vzdálenosti:Česká Skalice (3 km), Červený Kostelec (5 km), Náchod (11 km), Nové Město nad Metují (11 km), Jaroměř (14 km), Hronov (14 km), Dvůr Králové nad Labem (19 km), Opočno (19 km), Dobruška (20 km).
Parametry
- na Realingu
Co je v okolí
včetně kontaktních údajů na majitele
Jste inzerent?
Je toto vaše nabídka? Vylepšete ji a získejte více zájemců. Inzerování na Realingu je zdarma pro všechny.
Podobné nabídky v okolí
včetně kontaktních údajů na majitele
Jste inzerent?
Je toto vaše nabídka? Vylepšete ji a získejte více zájemců. Inzerování na Realingu je zdarma pro všechny.







