

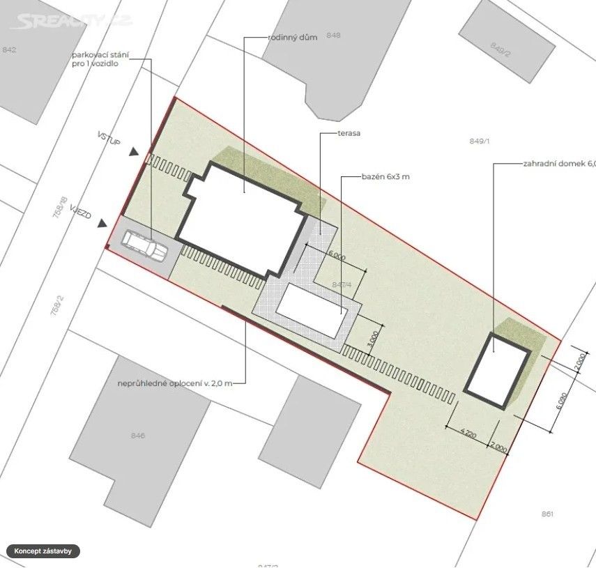
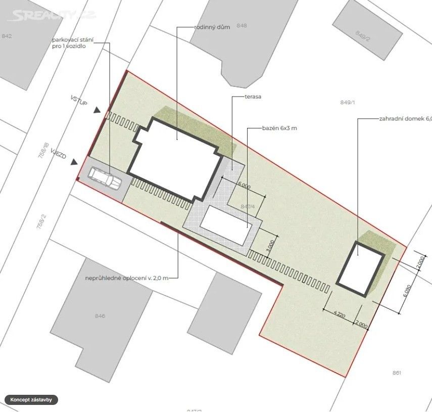
Pozemek ve vilové části Studénky, který představuje ideální příležitost pro ty, kteří hledají možnost pro realizaci svého nového domova. Nabízený pozemek se nachází v klidné lokalitě, která poskytuje dostatek soukromí a zároveň umožňuje dobrý přístup ke všem potřebným službám a dopravním spojením. Jedná se o oplocený, rovinatý a zasíťovaný pozemek o velikosti 655 m². Na pozemku elektřina, voda a kanalizace. Ideální pro výstavbu rodinného domu. V rámci fotografie je možné vidět navrženou koncepci zástavby pozemku. V případě dotazů mne neváhejte kontaktovat.
Parametry
- 655 m² pozemku
- na Realingu
- Aktualizace před 55 dny
včetně kontaktních údajů na majitele
Jste inzerent?
Je toto vaše nabídka? Vylepšete ji a získejte více zájemců. Inzerování na Realingu je zdarma pro všechny.
Podobné nabídky v okolí
včetně kontaktních údajů na majitele
Jste inzerent?
Je toto vaše nabídka? Vylepšete ji a získejte více zájemců. Inzerování na Realingu je zdarma pro všechny.







