

7 499 000 Kč
Splátka od 30 403 Kč měsíčně (úrok 4,44 %)Pozemek pro bydlení, 639 m², Zdeňka Fibicha, Brandýs nad Labem-Stará Boleslav
Nabízíme k prodeji staevbní pozemek s platným stavebním povolením. Současný majitel již vystavěl Základovou desku a tak je možné ihned pokračovat ve výstavbě. Do Vánoce může být stavba "pod střechou".
Další práce jsou již v režii budoucích majitelů. Nemovitost se nachází v klidné a vyhledávané lokalitě - ve Staré Boleslavi.
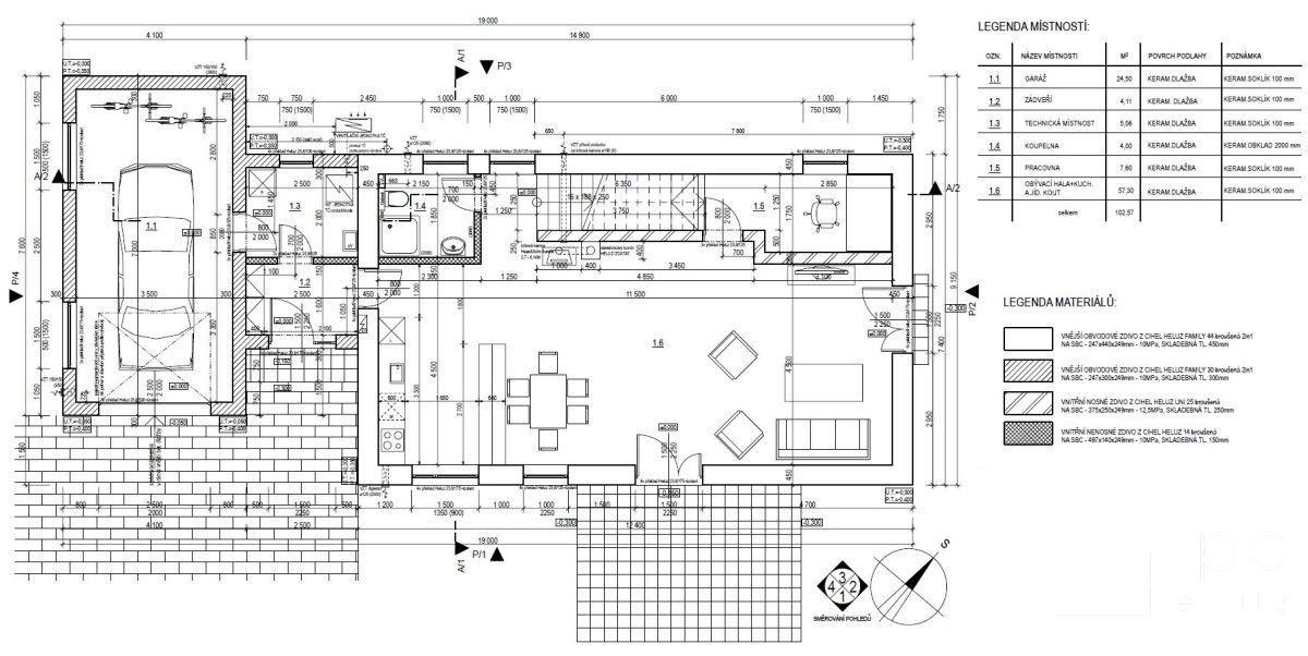
Dispozice a rozloha:
- 4+kk
- Užitná plocha 148 m
- Pozemek o výměře 639 m
Vybavení a infrastruktura:
- Přípojky na vodu, plyn, elektřinu a kanalizaci jsou již na pozemku.
- Stavba je naplánována jako moderní dvoupodlažní rodinný dům s garáží.
- Dokončená stavba nabídne komfortní bydlení s důrazem na nízkou energetickou náročnost.
Výhody lokality:
- Skvělá dopravní dostupnost rychlý přístup na dálnici, 25 minut do centra Prahy a 25 minut do Mladé Boleslavi.
- Veškerá občanská vybavenost v pěší vzdálenosti (200 m) potraviny, restaurace a další obchody.
- Klidná a zelená lokalita vhodná pro rodinné bydlení.
Koupi je možné financovat hypotečním úvěrem s jehož výběrem vám rádi poradíme.
Pro více informací a prohlídku nemovitosti nás neváhejte kontaktovat. Těšíme se na Vaši návštěvu!
Parametry
- ID nabídky Realingo-ER-73
- Cihlová stavba
- Ve výstavbě
- Samostatný
- Patrový
- 1 patro
- 639 m² pozemku
- 537 m² zahrady
- 102 m² zastavěné plochy
- 11 736 Kč za m² pozemku
- 4 místnosti
- Energeticky úsporná (C)
- Ukazatel energetické náročnosti 78 kWh/m²
- Přípojky: elektřina, plyn a kanalizace
- na Realingu
- Aktualizace před 97 dny







