

+3 fotografie
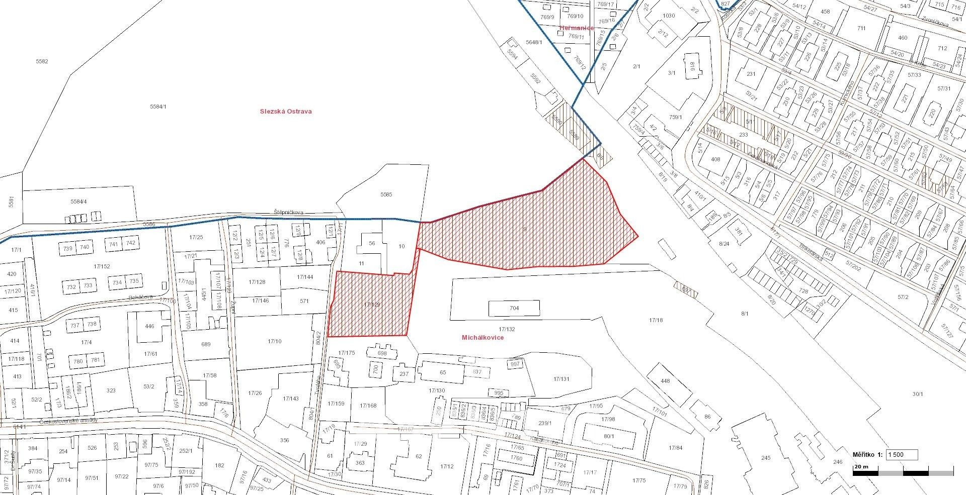
Nabízíme k prodeji pozemky p.č. 17/129 a p.č. 9 o celkové výměře 11 902 m² v k.ú. Michálkovice. Pozemky jsou přístupné z městské komunikace ul. Tvrdého. Dle územního plánu jsou pozemky vedeny jako lesy. Pozemek p.č. 17/129 se má potenciál na změnu územního plánu na bydlení nebo lehký průmysl, neboť se nachází vedle pozemků jak pro bydlení, tak pro lehký průmysl.Pozemky jsou zcela porostlé stromy a keři.Pozemky nejsou pronajaté.
Parametry
- ID nabídky Realingo-1249
- na Realingu
Mapa se načítá...
Co je v okolí
včetně kontaktních údajů na majitele
Jste inzerent?
Je toto vaše nabídka? Vylepšete ji a získejte více zájemců. Inzerování na Realingu je zdarma pro všechny.
Podobné nabídky v okolí
včetně kontaktních údajů na majitele
Jste inzerent?
Je toto vaše nabídka? Vylepšete ji a získejte více zájemců. Inzerování na Realingu je zdarma pro všechny.







