

21 500 Kč
Byt 2+1, 52 m², Voříškova, Brno
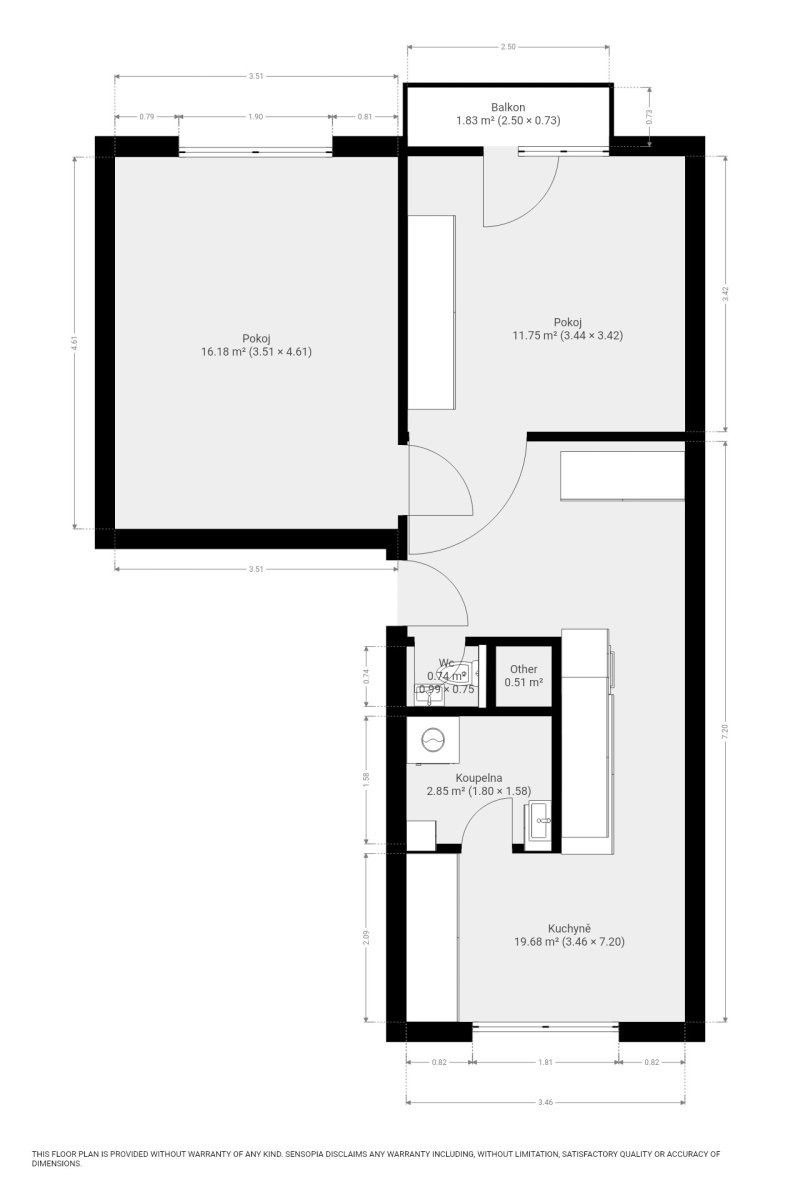
K dlouhodobému podnájmu nabízíme zrekonstruovaný byt o dispozici 2+1 na ulici Voříškova v bezprostřední blízkosti parku Holedná. Byt o celkové výměře 52 m² se nachází ve třetím patře panelového domu s výtahem. Předností bytu je velmi hezké nové vybavení, balkón s výhledem do zeleně a klidná lokalita.
Jedná se o částečně vybavený byt po kompletní rekonstrukci. Nová kuchyň disponuje plynovou troubou se sporákem, lednicí a myčkou. Dále je zde praktická spíž. Z kuchyně vede vchod do koupelny se sprchovým koutem a pračkou. WC je oddělené a přístupné z chodby. Skříň na chodbě nabízí dost úložného prostoru.
Zastávka MHD, supermarket Albert a Lidl se nachází 10 minut od domu. Jedná se o klidnou lokalitu nabízející veškerou občanskou vybavenost.
Byt bude připraven k nastěhování od 01.03.2026.
Uvedena energetická kategorie G, jelikož nemáme k dispozici PENB.
Byt pronajímá Ideální nájemce - služba, se kterou budete bydlet bezstarostně a za férových podmínek. Když se něco přihodí, k dispozici jsou správci, kteří s vámi vše vyřeší. Pomůžeme s veškerou administrativou, s nastavením plateb a zajistíme vám speciální pojištění. Pojďte bydlet s námi!
Parametry
- ID nabídky Realingo-N1848
- Panelová stavba
- Velmi dobrý stav
- Patrový
- 2. patro (z 5) s výtahem
- 52 m² užitné plochy
- 413 Kč za m² užitné plochy
- Částečně vybaveno nábytkem
- Osobní vlastnictví
- Balkón, výtah, sklep a bezbariérový
- Energeticky mimořádně nehospodárná (G)
- Dostupné od 1. 3. 2026
- na Realingu
- Dnes aktualizováno







