

23 500 Kč
Byt 2+kk, 60 m², Milánská, Praha
Poznámka k ceně: 23500 Kč/měs + náklady na bydlení 5500.-Kč.
Pronájem bytu 2+kk, Milánská, Horní Měcholupy, 60m²
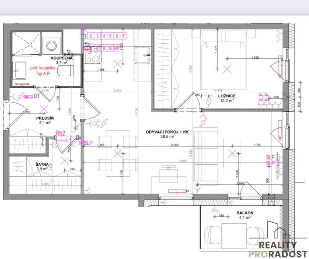
K dlouhodobému podnájmu Vám nový byt 2kk s výměrou 60m² a samostatnou sklepní kójí a parkovacím stáním.
Byt se nachází ve 2. patře novostavby cihlového domu s výtahem, okna krásně těsní a izoluji venkovní hluk tak že v bytě je velmi ticho.
Skládá se ze vstupní chodby z vestavěnou skříni, toalety s koupelnou zařízené sprchovým koutem, umyvadlem a přípojkou na pračku.
Dále je šatna, ložnice a obývací pokoj společný s kuchyňským koutem.
Obývací pokoj je ze vstupem na balkón.
Všechna okna jsou opatřena předokenními žaluziemi. Dveře na balkon jsou zajištěna zámkem na klič a venkovními žaluziemi na dálkové ovládání.
Kuchyně je zařízena spotřebiči - myčka, varná deska, digestoř a trouba.
Byt můžete zařídit plně podle svých představ a potřeb.
Byt je k dispozici k dlouhodobému nastěhování.
Zálohové platby neobsahují zálohy na elektřinu a pojištění domácnosti. Pronajímající si vyhrazuje právo vybrat nájemce na základě jím zvolených kritérií.
Prohlídky jsou možné po domluvě na těl 773230260
Parametry
- ID nabídky Realingo-23878
- Jiný druh stavby
- Novostavba
- 1. patro
- 60 m² užitné plochy
- 62 m² pozemku
- 62 m² podlahové plochy
- 392 Kč za m² užitné plochy
- Osobní vlastnictví
- Balkón
- na Realingu
- Včera aktualizováno
Co je v okolí
včetně kontaktních údajů na majitele
Jste inzerent?
Je toto vaše nabídka? Vylepšete ji a získejte více zájemců. Inzerování na Realingu je zdarma pro všechny.
Podobné nabídky v okolí
23 500 Kč
Byt 2+kk, 60 m²
Milánská, Praha
včetně kontaktních údajů na majitele
Jste inzerent?
Je toto vaše nabídka? Vylepšete ji a získejte více zájemců. Inzerování na Realingu je zdarma pro všechny.







