

22 000 Kč
Byt, Říčany u Prahy, 251 01
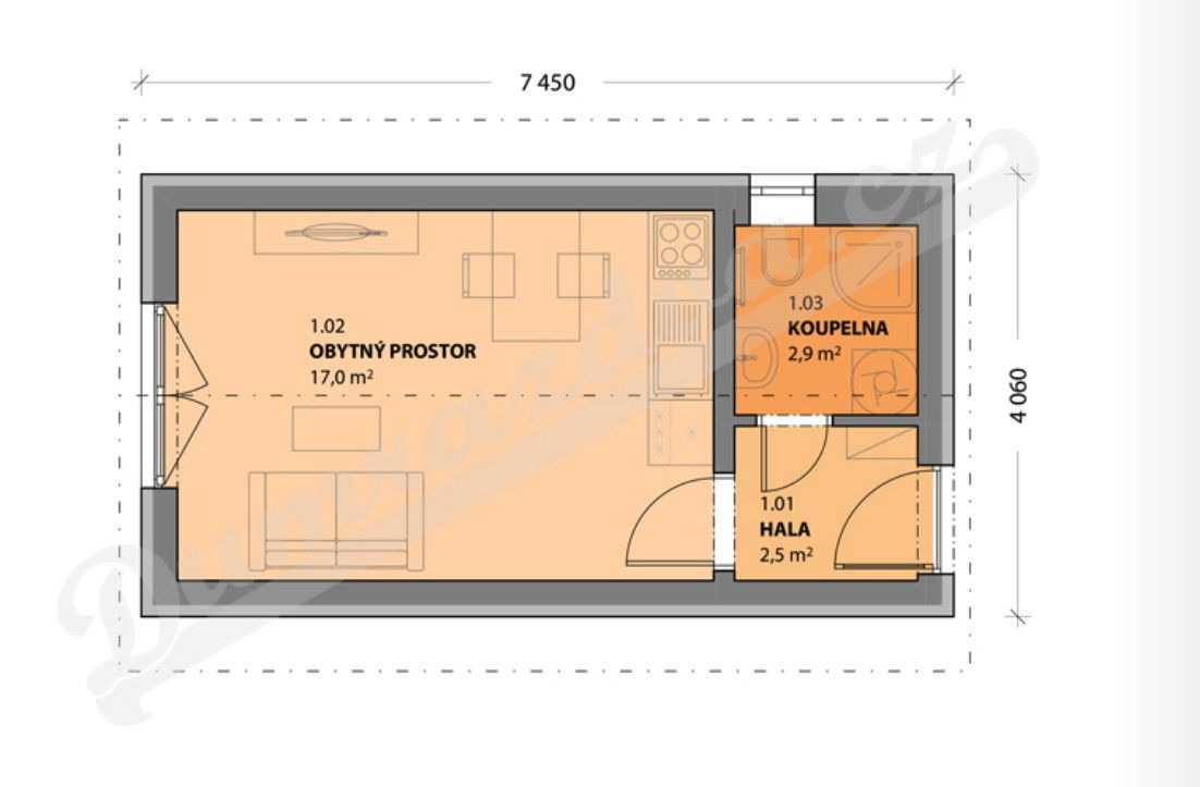
Dlouhodobý pronájem 1+kk bungalovu v Říčanech u Prahy – soukromí, zahrádka, výborná dostupnost do centra!Nabízím k dlouhodobému pronájmu nový, energeticky úsporný bungalov (1+kk) o užitné ploše 23 m² (celková plocha 30 m²), ideálně pro jednotlivce nebo pár, kteří hledají klidné bydlení s perfektní dostupností do Prahy (MHD do centra za 25 minut).🏡 Lokalita:Nachází se ve staré zástavbě Říčan – klidná, rezidenční oblast s výbornou občanskou vybaveností v dosahu.V dochozí vzdálenosti se nachází koupaliště a restaurace Jureček.🔑 Dispozice a vybavení:Vstupní halaObytný prostor s plně vybavenou kuchyňskou linkou (lednice, varná deska, mikrovlnná trouba, digestoř, LED podsvícení)Koupelna se sprchovým koutem, toaletou, pračkou a skříňkou s umyvadlemVlastní vstup a naprosté soukromí – jednotka je stavebně oddělena od hlavního rodinného domu🌿 Exteriér:K dispozici soukromá zahrádka cca 100 m², oddělená od hlavního pozemku – ideální na relax nebo pěstování bylinek (aktuálně se v realizaci).Vstup přes hliníkové bezpečnostní dveře🔥 Technologie a úspory:Nízkoenergetická dřevostavba (sendvičový systém)Vytápění a chlazení pomocí tepelného čerpadla a split jednotky LG (topí i chladí) – velmi nízké provozní náklady💡 Ideální pro ty, kdo hledají moderní, úsporné a bezstarostné bydlení – stačí se jen nastěhovat.📅 K nastěhování v průběhu srpna .🚭 Preferujeme nekuřáky, domácí mazlíčci dle domluvy.📞 Pro více informací nebo domluvení prohlídky mě neváhejte kontaktovat - 702205935
Parametry
- na Realingu
Co je v okolí
včetně kontaktních údajů na majitele
Jste inzerent?
Je toto vaše nabídka? Vylepšete ji a získejte více zájemců. Inzerování na Realingu je zdarma pro všechny.
Podobné nabídky v okolí
22 000 Kč
Byt
Říčany u Prahy, 251 01
včetně kontaktních údajů na majitele
Jste inzerent?
Je toto vaše nabídka? Vylepšete ji a získejte více zájemců. Inzerování na Realingu je zdarma pro všechny.







