

349 Kč / m²
Kancelář, 107 m², Bozděchova, Praha
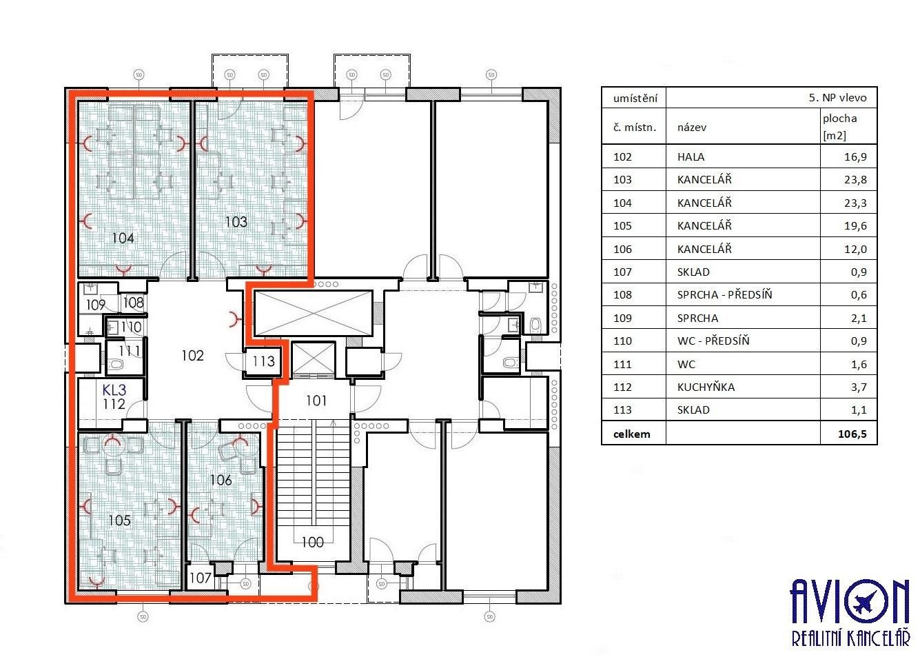
Nově zrekonstruované kancelářské prostory v 5. patře administrativní budovy v Praze 5 - Smíchově, přímo u metra Anděl, ul. Bozděchova. Celková plocha 107 m² se skládá ze čtyř hlavních místností, tři velké kanceláře od 20 do 24 m² a jedné menší o rozloze 12 m², ze dvou kanceláří je vstup na balkony. Všechny kanceláře jsou neprůchozí a vstupuje se do nich z centrální haly. V prostorách se dále nachází vybavená kuchyňka, sprcha, toaleta a malý sklad. Celé prostory jsou pod společným uzamčením s přístupem na magnetickou kartu a jsou klimatizované.
Možné využití nejlépe pro kancelářský provoz. Kanceláře jsou úplně nově zrekonstruované, nové koberce, vymalování, nová kuchyňská linka atd. Možnost pronájmu se systémovým kancelářským vybavením na foto nebo jako prázdné.
Administrativní kancelářská budova s velmi pěknými vnitřními prostory disponuje recepcí a čtyřmi společnými jednacími místnostmi s možností rezervace, jejichž využívání je již zahrnuto v ceně nájmu. Objekt má 24/7 ostrahu.
Vynikající dopravní dostupnost přímo na dopravním uzlu na Andělu.
K dispozici ihned.
Energetickou třídu G uvádíme z formálních důvodů, po obdržení průkazu energetické náročnosti budovy bude uvedena skutečná hodnota.
Parametry
- ID nabídky Realingo-0947
- Cihlová stavba
- Po rekonstrukci
- Patrový
- 107 m² užitné plochy
- Balkón a výtah
- na Realingu
- Aktualizace před 74 dny







