

22 000 Kč
Kancelář, 123 m², Masarykova, Hluboká nad Vltavou
Exkluzivně vám nabízíme pronájem nebytového prostoru v centru města Hluboká nad Vltavou v citlivě zrekonstruované budově bývalé restaurace a ubytovacího zařízení Bakalář.
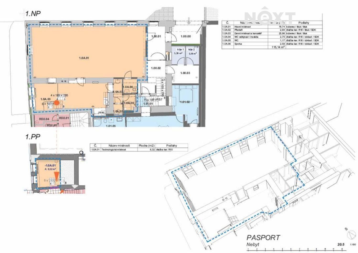
Vchod do nebytového prostoru je situován z ulice Masarykova. Užitná plocha činí 123,46 m². Dle projektové dokumentace bude mít prostor následující podobu: 1.NP - předsíň (2,94 m²), hlavní místnost (79,74 m²), 2x WC (2,75 m² a 1,17 m²), sprcha (2,58 m²), denní místnost a kancelář (25,96 m²). 1.PP - technologická místnost (8,32 m²). Vytápění a ohřev vody je zajištěn tepelným čerpadlem (vzduch, voda). Vstup do budovy bude bezbariérový.
Aktuálně na nemovitosti probíhají stavební práce. K nastěhování bude prostor připraven ke 30.1.2026.
Měsíční náklady spojené s užíváním prostoru činí: 22.000,- Kč nájem + energie dle potřeb nájemce, přičemž náklady na elektřinu budou sníženy díky vlastní fotovoltaické elektrárně. Internet bude přepsán na nového nájemce. Provize RK činí jeden měsíční nájem vč. DPH, vratná kauce je pronajímatelem stanovena na 22.000,- Kč. Zároveň zde nabízíme možnost pronájmu parkovacího stání / garáže. Více informací poskytne RK.
Prostor je díky své dispozici vhodný pro vybudování kanceláří či pro maloobchodní sektor. Doporučujeme prohlídku nemovitosti. Pro komunikaci uvádějte evidenční číslo zakázky N109811.
Parametry
- ID nabídky Realingo-N109811
- Po rekonstrukci
- 1. patro
- 123 m² užitné plochy
- 123 m² zastavěné plochy
- 179 Kč za m² užitné plochy
- Osobní vlastnictví
- Energeticky úsporná (C)
- na Realingu
- Aktualizace před 15 dny
Co je v okolí
včetně kontaktních údajů na majitele
Jste inzerent?
Je toto vaše nabídka? Vylepšete ji a získejte více zájemců. Inzerování na Realingu je zdarma pro všechny.
Podobné nabídky v okolí
22 000 Kč
Kancelář, 123 m²
Masarykova, Hluboká nad Vltavou
včetně kontaktních údajů na majitele
Jste inzerent?
Je toto vaše nabídka? Vylepšete ji a získejte více zájemců. Inzerování na Realingu je zdarma pro všechny.







