

20 € / m²
Kancelář, 869 m², Křižíkova, Praha
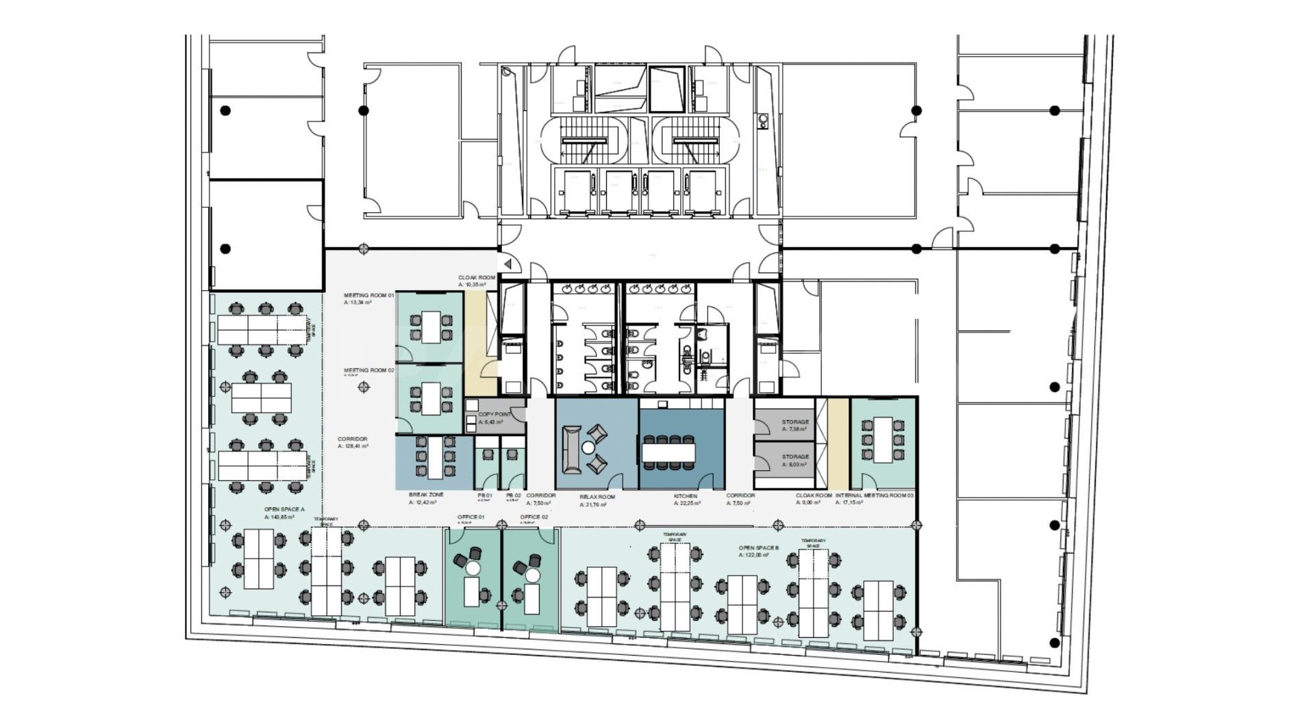
Dovolujeme si Vám nabídnout k pronájmu kancelářské prostory o celkové výměře 869 m², které se nachází ve 2.patře moderní administrativní budovy v městské části Prahy 8 - Karlín.
Výhodou prostor je již hotový moderní fit-out, dělící příčky, zasedací místnosti a phone booths.
Moderní administrativní projekt nabízí kanceláře k pronájmu v Praze se skvělým přístupem autem. Corso IIa je součástí Corso office parku, který nabízí přibližně 45 000 m² čisté plochy.
Banky, restaurace, hotely v okolí projektu.
Budova se nachází přímo u stanice metra Křižíkova (linka B), se snadnou dostupností centra města.
Pro více informací mne neváhejte kontaktovat, velice ráda Vám zařídím osobní prohlídku.
V této lokalitě Vám můžeme nabídnout další zajímavé prostory - nechte si bezplatně zpracovat nabídku aktuálně dostupných prostor dle Vašeho zadání, nebo navštivte naše webové stránky.
~ Neplatíte provizi ~
Parametry
- ID nabídky Realingo-N76995
- Skeletová stavba
- Velmi dobrý stav
- Patrový
- 2. patro
- 869 m² užitné plochy
- 869 m² kancelářské plochy
- Energeticky mimořádně nehospodárná (G)
- Elektřina: 400 V
- Internet
- Možnost parkování v garáži
- Mimo záplavovou oblast
- Dostupné od 1. 12. 2025
- na Realingu
- Aktualizace před 188 dny







