

Cena dohodou
Obchodní prostory, 189 m², Horská, Trutnov
Nabízím k pronájmu výjimečný komerční prostor v samotném centru Trutnova, v ulici Horská, jen pár kroků pod náměstím.
Prostor má samostatný vstup přímo z hlavní frekventované třídy, což zajišťuje vynikající viditelnost i dostupnost.
Jedná se o velmi reprezentativní místo, ideální zejména pro:
- bankovní a finanční instituce.
- pojišťovny.
- poradenské a klientské centrum.
- prémiovou prodejnu či showroom.
Hlavní přednosti prostoru:
- vstup přímo z hlavní ulice.
- dvě velké prosklené výlohy u vstupu - ideální pro prezentaci a reklamu.
- výborná pěší frekvence.
- prestižní adresa v centru města.
- samostatné měření všech energií (elektřina, voda, plyn).
- vytápění vlastním plynovým kotlem - plná kontrola nad provozními náklady.
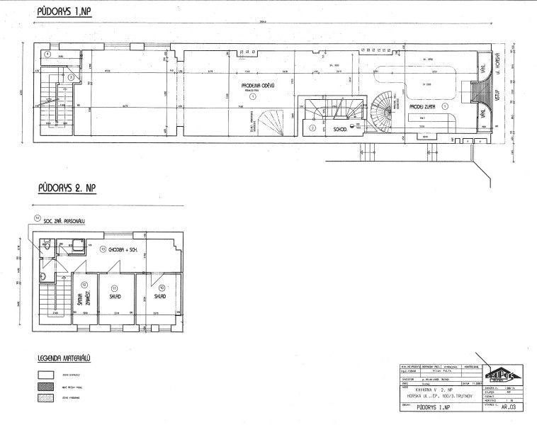
Dispozice a plochy:
Přízemí:
- prodejní / klientský prostor: 135 m².
- sociální zázemí: 2,7 m².
1. patro:
- sklady / kanceláře: 41 m²
- sociální zázemí: 4 m²
Celková plocha k pronájmu: cca 189 m².
Prostory jsou vhodné pro kombinaci prodejny, klientského centra a zázemí kanceláří, s možností oddělení provozu a administrativy.
Tento prostor nabízí výjimečné spojení polohy, reprezentativnosti a velikosti, které se v centru Trutnova objevuje jen velmi zřídka.
Pro více informací a domluvení osobní prohlídky mě neváhejte kontaktovat.
Rád Vám prostor osobně ukážu a probereme možnosti využití.
Parametry
- ID nabídky Realingo-233310
- Cihlová stavba
- Velmi dobrý stav
- 189 m² užitné plochy
- Osobní vlastnictví
- Energeticky mimořádně nehospodárná (G)
- Odpad: veřejná kanalizace
- Vytápění: lokální plynové
- Elektřina: 230 V
- Internet
- na Realingu
Co je v okolí
včetně kontaktních údajů na majitele
Jste inzerent?
Je toto vaše nabídka? Vylepšete ji a získejte více zájemců. Inzerování na Realingu je zdarma pro všechny.
Cena dohodou
Obchodní prostory, 189 m²
Horská, Trutnov
včetně kontaktních údajů na majitele
Jste inzerent?
Je toto vaše nabídka? Vylepšete ji a získejte více zájemců. Inzerování na Realingu je zdarma pro všechny.




