

+13 fotografií
50 000 Kč
elektřina na nájemce, + provize RK
Sklad, 301 m², Plzeň
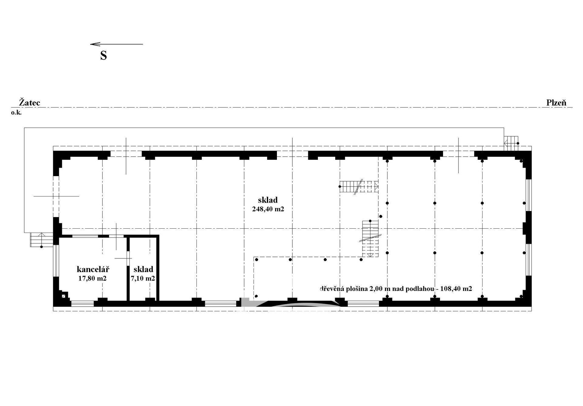
Nabízíme k pronájmu zděnou budovu blízko Jateční ulice v Plzni. Budova prošla částečnou rekonstrukcí, nová elektrika s velkým množstvím zásuvek, nové osvětlení, nová lepenka na střeše, vymalování, apod. Nabízí zděnou kancelář ( 17,8 m² ), sklad ( 7,1 m² ) a kromě skladové plochy na betonové podlaze ( 248,4 m² ) je zde možné jí navýšit v 1,5 m výšky o poschodí až 108,4 m² velké . Výška prostoru je 3,8 m. Vstupní vrata z rampy mají rozměry : výška 2,4 m a šířka 2,6 m . podél budovy s rampou je železniční vlečka. Kanalizace a voda v blízkosti objektu. Vhodné pro sklad nebo lehkou výrobu. Volné ihned, volejte makléři nebo napište na odpovědní formulář u inzerce.
Parametry
- ID nabídky Realingo-00203
- Cihlová stavba
- Dobrý stav
- Samostatný
- Přízemní
- Přízemí (přízemní budova)
- 301 m² užitné plochy
- 301 m² pozemku
- 381 m² podlahové plochy
- 301 m² zastavěné plochy
- 17 m² kancelářské plochy
- 140 m² výrobní plochy
- 355 m² skladovací plochy
- 166 Kč za m² užitné plochy
- Nevybaveno nábytkem
- Energeticky mimořádně nehospodárná (G)
- Odpad: veřejná kanalizace
- Elektřina: 230 V
- Rekonstrukce 2026
- na Realingu
Mapa se načítá...
Kontaktujte makléře ihned
50 000 Kč
elektřina na nájemce, + provize RK
