

58 055 Kč
Sklad, 683 m², Tovární, Jirny
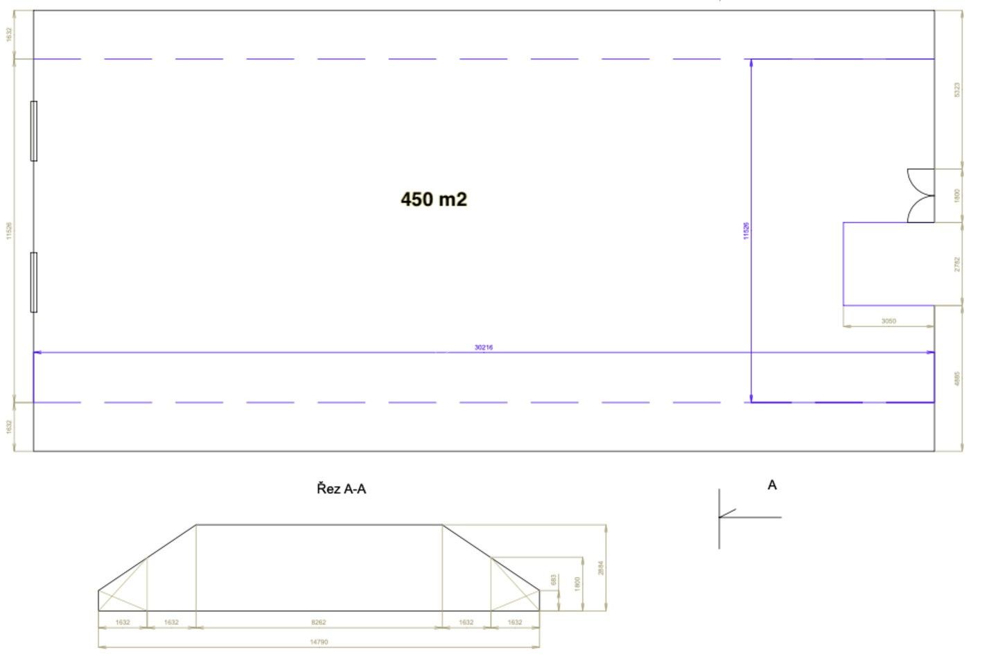
Skladový prostor je ve druhém patře celkem ve 4 místnostech o rozloze 683 m². Prostor je přístupný nákladním výtahem s nosností 1 000 kg a schodištěm, příjezd nákladních vozidel k rampě která disponuje dostatečným manipulačním prostorem pro vozidla do 5 t. Sklad je vybaven topením pro temperování proti zamrznutí a v přízemí jsou k dispozici společné toalety. Průkaz energetické náročnosti zatím nebyl vydán, proto je administrativně uvedena jako třída G – úsporná, což neodráží skutečnou spotřebu energie.Výborná dopravní dostupnost – snadné napojení na dálnici D11 a Pražský okruh, dobrá dostupnost do centra Prahy i do průmyslových zón v okolí, zastávka MHD přímo před budovou (směr Černý Most, Brandýs nad Labem, Úvaly a další směry).
Parametry
- ID nabídky Realingo-11606
- Velmi dobrý stav
- 683 m² užitné plochy
- 683 m² pozemku
- 683 m² zastavěné plochy
- 85 Kč za m² užitné plochy
- Energeticky mimořádně nehospodárná (G)
- Elektřina: 230 V a 400 V
- Plynovod
- na Realingu
- Aktualizace před 7 dny
Co je v okolí
včetně kontaktních údajů na majitele
Jste inzerent?
Je toto vaše nabídka? Vylepšete ji a získejte více zájemců. Inzerování na Realingu je zdarma pro všechny.
58 055 Kč
Sklad, 683 m²
Tovární, Jirny
včetně kontaktních údajů na majitele
Jste inzerent?
Je toto vaše nabídka? Vylepšete ji a získejte více zájemců. Inzerování na Realingu je zdarma pro všechny.


