

Cena dohodou
Výrobní prostory, 536 m², Hrbovická, Ústí nad Labem
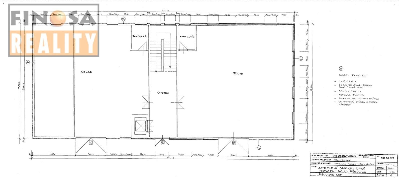
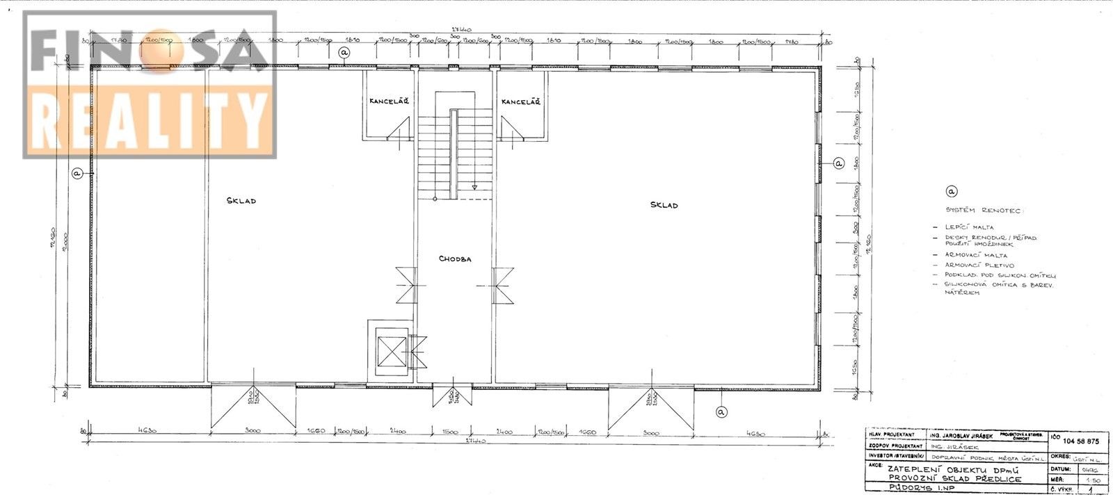
Oplocený areál budova s dílnami a kancelářemi a s pozemky v Ústí nad LabemPředlice, ulice Hrbovická. Areál má celkovou plochu pozemků 3 009 m², z toho je 325 m² zastavěná plocha budovou s kancelářemi a dílenskými prostory. Pozemky o celkové výměře 2 684 m² jsou částečně zpevněné, částečně nezpevněné. Areál je připojen na elektřinu, vodovodní řad a parovod (výměníková stanice). Budova o zastavené ploše 325 m² je dvoupodlažní, částečně zděná s možností vytápění výměníkovou stanicí. V přízemí budovy jsou dva prostory vhodné např. jako dílna jeden prostor o ploše 136 m², druhý prostor má plochu 132 m². V patře budovy jsou prostory kanceláří o celkové ploše cca 120 m² a dále pak dva větší prostory a sociální příslušenství budovy toalety a sprchy. Budova je vyklizená, volná a je možné jí ihned užívat, stejně tak jako související pozemky.
Parametry
- ID nabídky Realingo-U824045
- Jiný druh stavby
- Dobrý stav
- 536 m² užitné plochy
- 3 m² pozemku
- 325 m² zastavěné plochy
- Osobní vlastnictví
- Energeticky mimořádně nehospodárná (G)
- Odpad: veřejná kanalizace
- Elektřina: 230 V a 400 V
- Internet
- na Realingu
- Aktualizace před 39 dny
Co je v okolí
včetně kontaktních údajů na majitele
Jste inzerent?
Je toto vaše nabídka? Vylepšete ji a získejte více zájemců. Inzerování na Realingu je zdarma pro všechny.
Podobné nabídky v okolí
Cena dohodou
Výrobní prostory, 536 m²
Hrbovická, Ústí nad Labem
včetně kontaktních údajů na majitele
Jste inzerent?
Je toto vaše nabídka? Vylepšete ji a získejte více zájemců. Inzerování na Realingu je zdarma pro všechny.







