

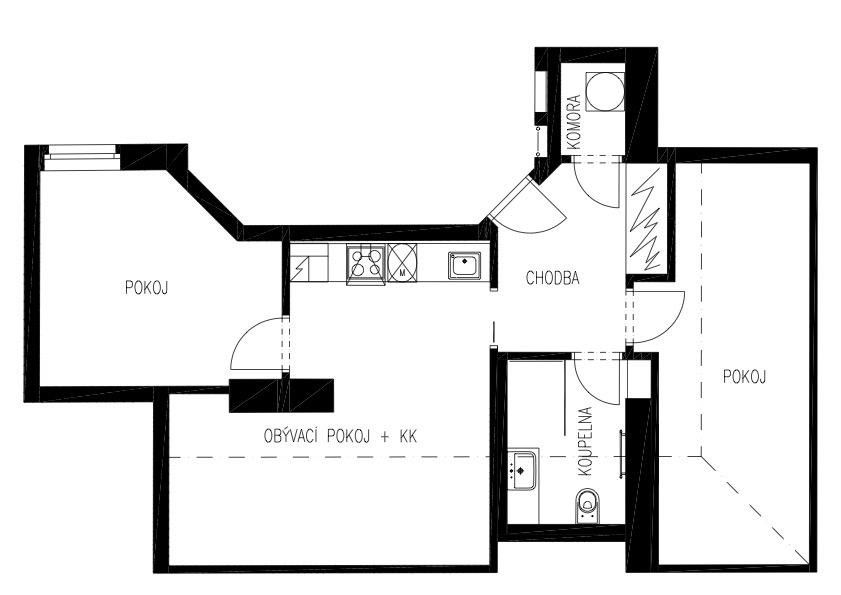
Nabízená bytová jednotka č. 52 o dispozici 3+kk a celkové ploše 66,6 m² se nachází v pečlivě zrekonstruovaném činžovním domě, v 5. nadzemním podlaží.
Součástí jednotky je sklepní kóje o velikosti 2,8 m².
Jednotka je dokončena do standardu „shell & core“, tedy k dokončení dle vlastních potřeb.
Celý dům prochází citlivou rekonstrukcí a rezidenti budou moci využívat nové společné prostory jako jsou kolárna, kočárkárna nebo klidný vnitroblok určený k odpočinku.
Lokalita nabízí příjemné rezidenční prostředí s kompletní občanskou vybaveností v okolí. V docházkové vzdálenosti jsou kavárny, restaurace, obchody, školy, zdravotnická zařízení i zastávky MHD. Na dosah je také městská zeleň a parky, které vybízejí k odpočinku či sportu.
Parametry
- ID nabídky Realingo-ROS52
- Cihlová stavba
- Před rekonstrukcí
- 4. patro
- 64 m² užitné plochy
- 67 m² zastavěné plochy
- 139 688 Kč za m² užitné plochy
- Osobní vlastnictví
- Energeticky mimořádně nehospodárná (G)
- na Realingu
- Aktualizace před 68 dny
Co je v okolí
včetně kontaktních údajů na majitele
Jste inzerent?
Je toto vaše nabídka? Vylepšete ji a získejte více zájemců. Inzerování na Realingu je zdarma pro všechny.
Podobné nabídky v okolí
včetně kontaktních údajů na majitele
Jste inzerent?
Je toto vaše nabídka? Vylepšete ji a získejte více zájemců. Inzerování na Realingu je zdarma pro všechny.







