

8 840 000 Kč
Byt 3+kk, 60 m², Rostislavova, Praha
Nabízíme k prodeji byt 3+kk o velikosti 60,3 m v 5. patře cihlového domu, který vznikl jako půdní nadstavba v roce 2021. Díky tomu má byt moderní provedení, čisté linie a zároveň zůstává v klasickém prvorepublikovém domě s charakterem. Bonus? Nad vámi už nikdo nebydlí klid a soukromí je tedy zaručeno.
Dispozice a vybavení:
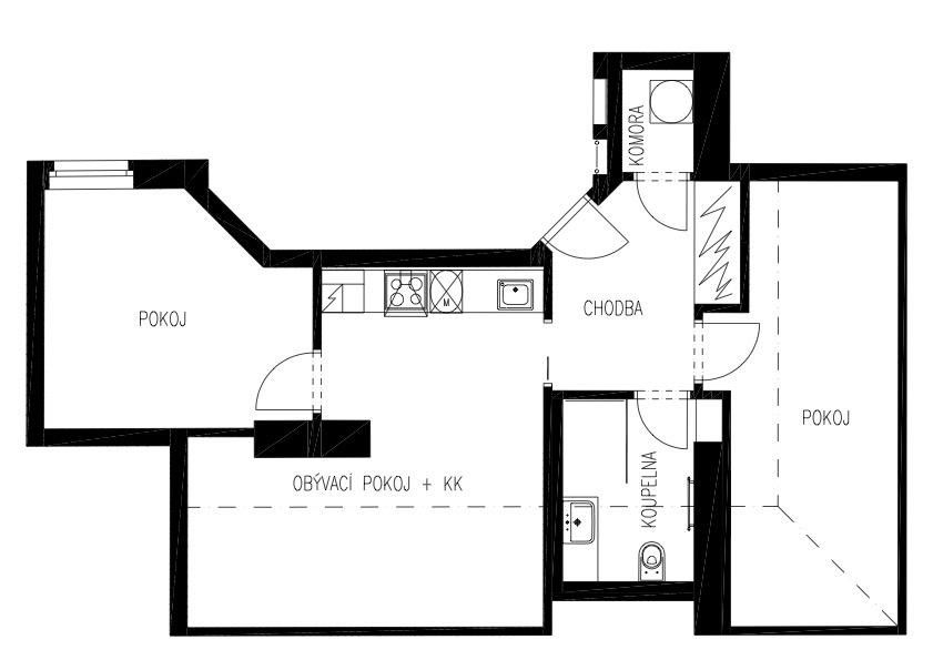
Obývací pokoj s kuchyňským koutem + dva samostatné pokoje.
Koupelna se sprchovým koutem, topným žebříkem a obkladem po celé výšce stěn, WC.
Vlastní plynový kotel v technické místnosti (vytápění radiátory, v koupelně topný žebřík) + pračka.
Podlahy: velkoformátová dlažba v koupelně, v ostatních místnostech PVC lamely v dekoru dřeva.
Chlazení venkovní jednotka na střeše + vnitřní jednotka v obývacím pokoji, ochladí spolehlivě celý byt.
K dispozici je i sklep v suterénu domu.
Náklady na bydlení:
Měsíční zálohy na služby: 2.262 Kč
elektřina a plyn dle vlastní spotřeby
Dům a okolí:
Dům kompletně zrekonstruován (výtah, okna, rozvody, vymalované společné prostory).
Sklep se nachází v suterénu domu, v domě jsou společné úložné prostory.
Lokalita, která má šmrnc:
4 minuty pěšky na Náměstí Bratří Synků (tram, bus, obchody, kavárny)
1 zastávka tramvají na metro C Vyšehrad
Grébovka, Nuselské schody i Folimanka v docházce.
Byt je v současné době užíván, více fotek a informací vám rád poskytnu na vyžádání.
Parametry
- ID nabídky Realingo-10928
- Cihlová stavba
- Velmi dobrý stav
- Patrový
- 5. patro (z 5) s výtahem
- 60 m² užitné plochy
- 147 333 Kč za m² užitné plochy
- Částečně vybaveno nábytkem
- Osobní vlastnictví
- Výtah a sklep (4 m²)
- 3 místnosti
- Podkrovní byt
- na Realingu
- Aktualizace před 12 dny







