

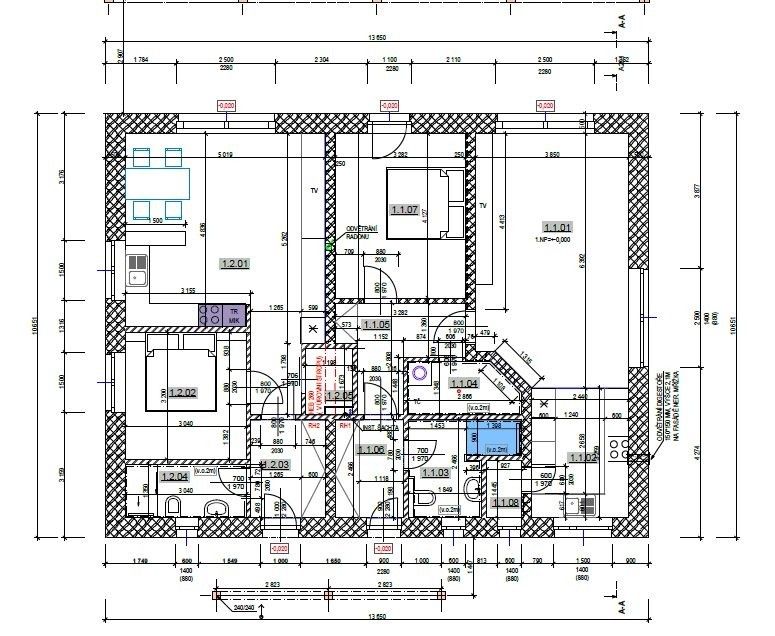
NABÍDKA – PRODEJ RODINNÉHO DOMU 2 B.J, HRUBÁ STAVBA, BROUMOV Přízemní, bezbariérový rodinný dům o dvou bytových jednotkách v Hejtmánkovicích, blízko Broumova. Tento objekt se hodí jako bezbariérové, i dvougenerační bydlení pro dvě rodiny, nebo jako jeden velký, nadstandartní byt pro větší rodinku. Může být ale i velmi lákavým bydlením pro jedince na důchod, v klidné a velmi aktivní vesnici. V současné době je hotová hrubá stavba, dům je napojen na všechny inženýrské sítě, je proveden sjezd z místní komunikace. Součástí projektu jsou i dvě parkovací místa a dále zde je prostor pro vybudování technického zázemí k domu, zemního bazénu a zahrady. Ve stavbě již nechce investor dále pokračovat, jelikož se mu změnily rodinné priority a dále chce, aby si tento krásný dům již dodělal jeho nový majitel k obrazu svému. Dům se nachází v Hejtmánkovicích, v klidné části krásné a aktivní obce, v docházkové vzdálenosti od města Broumova. Rozměr domu je 13,650 x 10,660 m, výměra parcely je 1.139m². Hrubá stavba je dokončena, dům je napojen na veškeré inženýrské sítě, jsou provedeny hrubé terénní úpravy. V případě požadavků na úpravu půdorysu příčky lze ještě provést dle vlastních požadavků, je možná změna stavby před dokončením, což prodávající zajistí na úřadech. Dáváme k nahlédnutí část PD, dále poskytujeme fotodokumentaci současného stavu. V případě zájmu prosím kontaktujte nás na tel.: 724 182 792, k prohlídce na místě a dále k poskytnutí dalších informací
Parametry
- na Realingu
- Aktualizace před 31 dny
Co je v okolí
včetně kontaktních údajů na majitele
Jste inzerent?
Je toto vaše nabídka? Vylepšete ji a získejte více zájemců. Inzerování na Realingu je zdarma pro všechny.
Podobné nabídky v okolí
včetně kontaktních údajů na majitele
Jste inzerent?
Je toto vaše nabídka? Vylepšete ji a získejte více zájemců. Inzerování na Realingu je zdarma pro všechny.







