

7 245 000 Kč
Rodinný dům, 195 m², Pšov, Podbořany
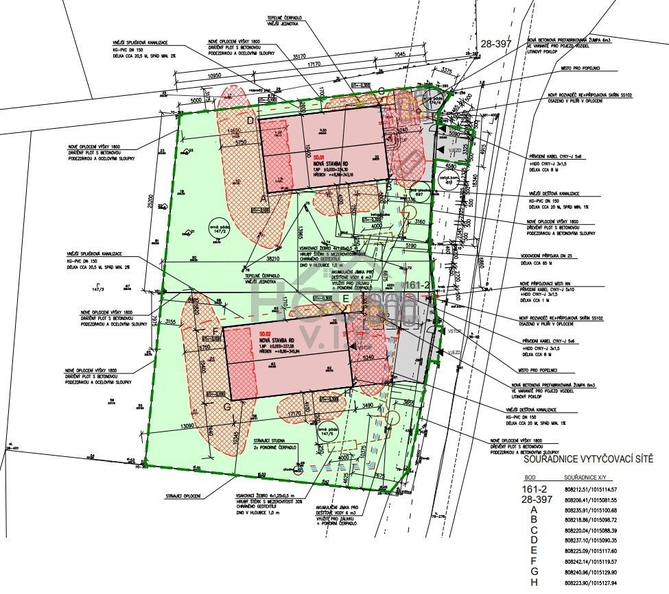
Nabízíme k prodeji moderní rodinný dům na klíč 4+kk, o užitné ploše 194 m², který bude realizován na slunném pozemku o výměře 1 000 m², v klidné části obce Podbořany s krásným výhledem do zeleně. Projekt je připravován ve vysokém standardu přímo vlastníkem pozemku, s důrazem na kvalitu použitých materiálů, energetickou úspornost a komfortní bydlení. Schválení stavebního povolení očekáváme začátkem roku 2026.Výstavba a cena:Cena zahrnuje pozemek a realizaci hrubé stavby (základy, nosné konstrukce, střecha, zateplení, dveře, schodiště). Za příplatek je možné dokončit dům přesně dle vizualizace a požadavků kupujícího. Na prodej je také sousední pozemek včetně realizace o stejné výměře 1 000 m² (viz koordinační výkres). Je také možné koupit pozemek ihned s hotovým projektem a stavebním povolením za 2.49 mln. s možností samostatné realizace. Financování stavby je možné rozdělit na jednotlivé etapy, takže celou částku nemusíte platit najednou.Zastavěná plocha: 178,57 m².Podlahová plocha: 194,25 m². • 1. NP: 117,42 m² + terasa 35,79 m². • 2. NP: 76,83 m².Výška stavby: 8,86 m.Konstrukce: nosné stěny z dutinových keramických tvárnic.Strop nad 1. NP: železobetonový monolit (tl. 250 mm).Vytápění: tepelné čerpadlo + krbová vložka.Další technologie: fotovoltaika, klimatické zatížení řešeno v projektu.Přípojka vody: ze stávající studny.Kanalizace: domovní ČOV.Dispozice 1. NP (117,42 m²):Technická místnost (6,81 m²), WC (5,22 m²), spíž (7,54 m²), vstupní hala (13,63 m²), ložnice (12,37 m²), šatna (5,73 m²), druhá šatna (5,91 m²), obývací pokoj s kuchyňským koutem (60,21 m²) a terasa (35,79 m²).Dispozice 2. NP (76,83 m²):Schodiště (8,47 m²), galerie (23,82 m²), ložnice (14,92 m²), koupelna (5,65 m²), druhá ložnice (13,67 m²), šatna (4,09 m²) a koupelna (6,21 m²).Lokalita:Nemovitost se nachází v tiché části obce, pouhých 350 m od autobusové zastávky směr Žatec. Podbořany nabízejí plnou občanskou vybavenost, dobrou dostupnost do větších měst a krásné okolí ideální pro rodinné bydlení.Energetická náročnost:Budoucí PENB bude odpovídat hodnotám nízkoenergetického až pasivního domu třídy "A", což zaručuje nízké provozní náklady.Pro více informací o rodinném domě a možnostech individuálních úprav nás kontaktujte.
Parametry
- ID nabídky Realingo-904
- Cihlová stavba
- 195 m² užitné plochy
- 1 m² pozemku
- 179 m² zastavěné plochy
- 37 154 Kč za m² užitné plochy
- Přípojky: elektřina a kanalizace
- na Realingu
- Aktualizace před 2 dny
Co je v okolí
včetně kontaktních údajů na majitele
Jste inzerent?
Je toto vaše nabídka? Vylepšete ji a získejte více zájemců. Inzerování na Realingu je zdarma pro všechny.
Podobné nabídky v okolí
7 245 000 Kč
Rodinný dům, 195 m² + 1 m² pozemek
Pšov, Podbořany
včetně kontaktních údajů na majitele
Jste inzerent?
Je toto vaše nabídka? Vylepšete ji a získejte více zájemců. Inzerování na Realingu je zdarma pro všechny.







