

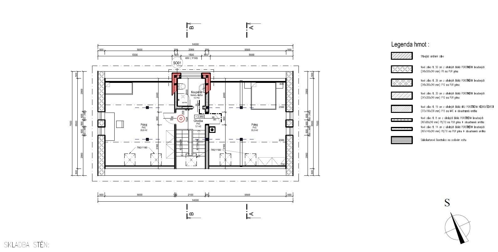
Máte rádi Vysočinu a nemáte čas na výstavbu rodinného domu? Pak právě pro Vás tu budeme mít cca do roka novostavbu rodinného domu 4+kk s jihozápadní orientací v malé vesničce Šach, 10 km od Dačic. Jde o dvoupodlažní cihlový dům s použitím moderních technologií (tepelné čerpadlo, podlahové vytápění) se zaměřením na kvalitu použitých materiálů a praktičnost na rodinné bydlení. V přízemí najdete prostorný obývací pokoj s kuchyňským koutem, ložnici a první koupelnu se sprchovým koutem, v patře pak další 2 pokoje (každý 30 m²) a druhou koupelnu se sprchou. Plastová okna, podlahové vytápění v přízemí, vinylové podlahy + dlažba, tepelné čerpadlo. Energetická náročnost B. Okolo domu malá zahrádka. Pozemek o celkové ploše 573 m². Objekt bude napojen na všechny inženýrské sítě kromě plynu. Předpokládaný termín dokončení léto 2026.
Parametry
- ID nabídky Realingo-61
- Cihlová stavba
- Novostavba
- 146 m² užitné plochy
- 573 m² pozemku
- 105 m² zastavěné plochy
- 53 425 Kč za m² užitné plochy
- Energeticky velmi úsporná (B)
- Přípojky: elektřina a kanalizace
- na Realingu
- Aktualizace před 79 dny
Co je v okolí
včetně kontaktních údajů na majitele
Jste inzerent?
Je toto vaše nabídka? Vylepšete ji a získejte více zájemců. Inzerování na Realingu je zdarma pro všechny.
Podobné nabídky v okolí
7 800 000 Kč
Splátka od 31 436 Kč měsíčně (úrok 4,39 %)Rodinný dům, 146 m² + 573 m² pozemek
Šach, Volfířov
včetně kontaktních údajů na majitele
Jste inzerent?
Je toto vaše nabídka? Vylepšete ji a získejte více zájemců. Inzerování na Realingu je zdarma pro všechny.






