

13 990 000 Kč
Rodinný dům, 175 m², Syrovická, Rajhrad
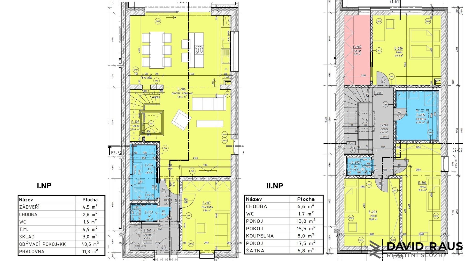
Nabízím k prodeji rodinný dům (č.2) o dispozici 5+kk, se zastřešeným parkovacím stáním na vlastním pozemku (283 m²), ve městě Rajhrad.Rodinný dům o podlahové ploše 175 m² je ve fázi výstavby a je jeden ze čtyř nízkoenergetických rodinných domů na ulici Syrovická, v Rajhradě. Energetické náročnost domu je klasifikována do třídy A - mimořádně úsporné. VÝSTAVBA ZAHÁJENA 9/2025Dispozice domu:1.NP Vstupní dveře vedou do zádveří ( 4,5 m²), vedoucí do chodby (2,8 m²) s přístupem na samostatné WC ( 1,6 m²), do technické místnosti ( 4,9 m²), pracovny (11,8m²), skladu (3,0 m²)a otevřeného obývacího pokoje s kuchyňským koutem ( 48,5 m²). Ústředním prvkem propojující jednotlivá patra domu je schodiště z obývacího pokoje. 2.NP Do druhého patra domu vystoupáme po schodišti na chodbu ( 6,6 m²), kde se nachází tři samostatné pokoje, které mohou sloužit jako samostatné dva dětské pokoje ( 13,8m², 15,5m²) a ložnice (17,5m²) ze které vedou dveře do šatny (6,8m²). K dispozici na patře je prostorná koupelna ( 8,0 m²) a samostatné WC ( 1,7m²). Základní informace :- výstavba RD na klíč (5+kk ) - podlahová plocha domu 175 m²- užitná plocha domu 147 m²- výměra pozemku 283 m²- fotovoltaická elektrárna- podlahové teplovodní topení- tepelné čerpadlo- zastřešené parkovací stání- perfektní občanská vybavenost a dostupnost do města Brna- atraktivní lokalita pro bydlení- stavba zahájena 9/2025Veškerý právní servis zajištěn. Nabízím možnost financování. Pro více informací kontaktujte makléře.
Parametry
- ID nabídky Realingo-325
- Cihlová stavba
- Ve výstavbě
- 175 m² užitné plochy
- 283 m² pozemku
- 79 943 Kč za m² užitné plochy
- Přípojky: elektřina a kanalizace
- na Realingu
- Aktualizace před 22 dny
Co je v okolí
včetně kontaktních údajů na majitele
Jste inzerent?
Je toto vaše nabídka? Vylepšete ji a získejte více zájemců. Inzerování na Realingu je zdarma pro všechny.
Podobné nabídky v okolí
13 990 000 Kč
Rodinný dům, 175 m² + 283 m² pozemek
Syrovická, Rajhrad
včetně kontaktních údajů na majitele
Jste inzerent?
Je toto vaše nabídka? Vylepšete ji a získejte více zájemců. Inzerování na Realingu je zdarma pro všechny.







