

Cena dohodou
Kancelář, Šumperk, 787 01
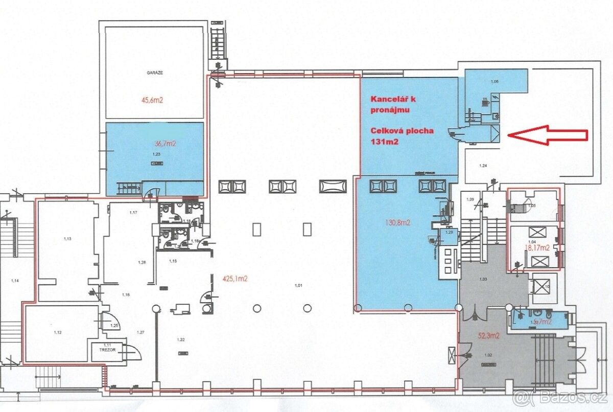
Hledáte vhodné kancelářské prostory pro Vaše podnikání v centru města Šumperk? Kancelář je pro produktivitu nezbytná a je také místem pro upevňování a budování pracovních vztahů. Vytvořte si motivující pracovní prostředí.V budově Komerční banky je k dispozici několik kanceláří. Budova se nachází v samotném centru Šumperka na ulici Dr. E. Beneše. Samozřejmě v pěší dostupnosti nechybí veškerá občanská vybavenost od úřadů přes poštu až po banky a pojišťovny.Aktuální nabídka:4.NP s výtahem: PRONAJATO- kancelář č. 1 s celkovou výměrou 42m² ( předělena příčkou na dvě kanceláře (2x 21m²). Kanceláře je možné pronajmout pouze jako celek - kancelář č. 2 s celkovou výměrou 21m²- kancelář č. 3 s celkovou výměrou 43m² ( předělena příčkou na dvě kanceláře kanceláře. Kanceláře lze pronajmout pouze jako celek - sociální zázemí + kuchyňka na chodbě1.NP: K DISPOZICI- kancelář č. 4 s velkorysou výměrou 130m² (disponuje kuchyňkou a archivem).- sociální zázemí na patřeMěsíční nájemné činí 180Kč/m² + energie zálohově 2.000Kč/měsíc (s ročním vyúčtováním). Možnost parkování na parkovišti Obchodního centra Praděd - 1 000Kč/měsícIdeální pro všechny, pro koho bude přínosem možnost využívat výtahy vč. bezbariérového a parkoviště naproti budovy.Prostory jsou ihned k dispozici, prohlídky po předchozí dohodě.Benefitem tohoto komerčního prostoru je bezesporu již zmíněná poloha v centru města.
Parametry
- na Realingu
- Aktualizace před 30 dny
Co je v okolí
včetně kontaktních údajů na majitele
Jste inzerent?
Je toto vaše nabídka? Vylepšete ji a získejte více zájemců. Inzerování na Realingu je zdarma pro všechny.
Podobné nabídky v okolí
Cena dohodou
Kancelář
Šumperk, 787 01
včetně kontaktních údajů na majitele
Jste inzerent?
Je toto vaše nabídka? Vylepšete ji a získejte více zájemců. Inzerování na Realingu je zdarma pro všechny.







