

350 Kč / m²
Komerční nemovitost, 360 m², Chrudimská, Praha
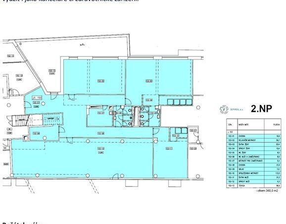
Nebytové prostory s pronajímatelnou plochou 360 m² ve 2. NP s výtahem a se vstupem z pasáže, která spojuje ulici Hradeckou a Chrudimskou. Aktuálně jsou prostory provozované jako studio HOT YOGY. Ideální pro zájemce hledající podobné využití (masážní studio, YOGA studio, pilates, apod.). Lze i po
dohodě se stávajícím nájemcem převzít zařízení a vybavení studia, není to však podmínkou. Prostory je možné po úpravě využít i jako kanceláře či zdravotnické zařízení.
Počátek nájmu - prostory jsou k dispozici po domluvě se stávajícím nájemníkem.
Nájemné - cena k jednání, od 350,- Kč/m²/měsíc (bez DPH).
Zálohy na služby - určí se dle zvoleného provozu. Na základě aktuálních cen energií a využití prostoru je stanovena výše zúčtovatelných záloh na služby a vlastní spotřebu na 145,- Kč/m²/měsíc vč. DPH, s ročním vyúčtováním.
Doba nájmu - ideálně na dobu určitou, min. 3 let.
Jistota - ve výši 2měsíčních nájmů vč. DPH a 2 záloh na služby bude uhrazena při podpisu smlouvy, resp. nejpozději v den počátku nájmu.
Technická specifikace nebytového prostoru:
- elektrická energie, přívod teplé a studené vody, centrální vytápění
- vlastní sociální zázemí
- vzduchotechnika
- vstup do společných prostor na čipy
- světlá výška 2,9 m
Vybavení budovy:
- ostraha 24/7
- EPS, CCTV
- vstup na čipy
- podzemní garáže
Pronajímatel je připraven:
- konzultovat technické požadavky nájemce na úpravu prostor
- realizovat stavební úpravy prostor
- zajistit projednávání požadovaných změn s dotčenými orgány
Parametry
- ID nabídky Realingo-N05038
- Skeletová stavba
- Velmi dobrý stav
- Patrový
- 5 pater
- 360 m² užitné plochy
- Osobní vlastnictví
- Energeticky úsporná (C)
- Odpad: veřejná kanalizace
- Internet, kabelová televize a ostatní
- Mimo záplavovou oblast
- Dostupné od 1. 2. 2026
- na Realingu







