

4 590 000 Kč
Byt 2+1, 75 m², K Višňovce, Pardubice
Rezervováno.
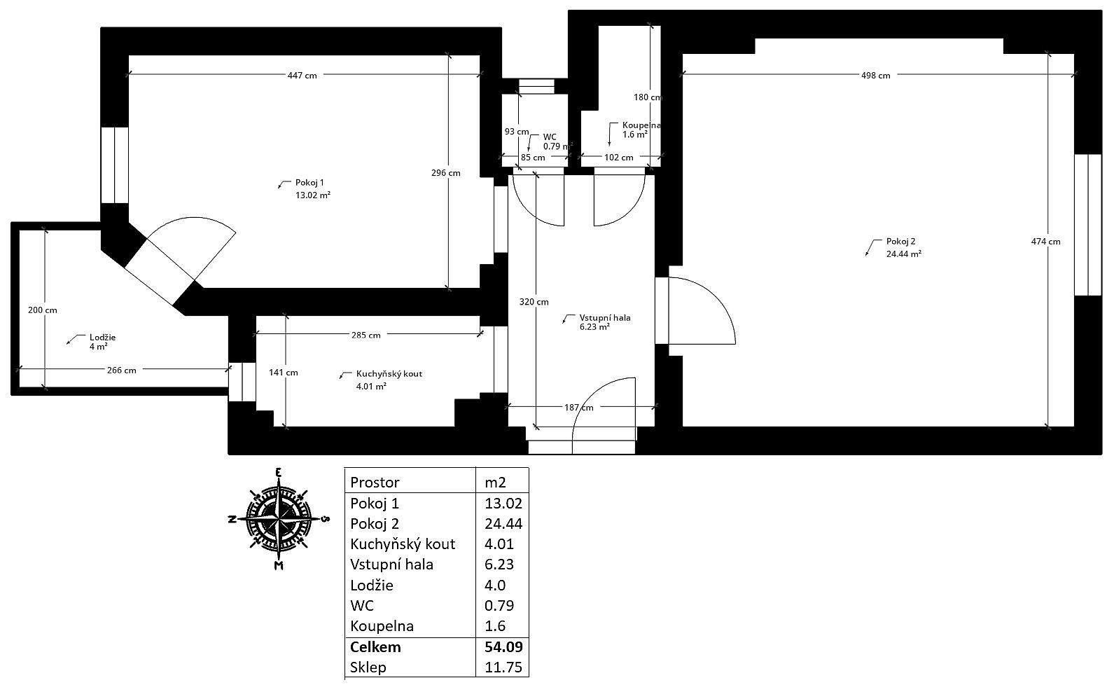
Dobrý den, právě pro Vás připravujeme k prodeji byt o dispozici 2+1 a celkové výměře podle dokumentace 74,7 m², který se nachází v 1.NP zděného prvorepublikového bytového domu v ulici K Višňovce v Pardubicích. Plnohodnotná nabídka bude zveřejněna do 14 dnů.
Předmětný byt se nachází v 1.NP (přízemí) zděného bytového domu o šesti bytech z roku cca 1933. Orientace: sever, jih. V minulosti prošel rekonstrukcí, která je již z určitého pohledu morálně zastaralá. Nicméně byt je plně funkční. Vytápění a ohřev vody je řešeno prostřednictvím vlastního ústředního kombinovaného plynového kotle. Světlá výška obytných místností činí 3 m.
Výše příspěvku do fondu oprav činí cca 1.450 Kč. Náklady uživatele bytu činily: 1.220 Kč plyn, 600 Kč elektřina, 550 Kč vodné a stočné. Bytový dům je ve slušném stavu s údržbou a obměnou potřebných technických zařízení a prvků.
Předmětný byt je svou dispozicí vhodný k pronájmu, protože obsahuje dva samostatné pokoje, kuchyňku, samostatné WC a koupelnu. Posledních 10 let byl v pronájmu, a to vždy po 5 letém období délky nájmu.
Ulice K Višňovce má kouzlo jednosměrné ulice lemované prvorepublikovými domy. Kdo má rád atmosféru starších domů s vyššími stropy, ten si přijde na své.
Děkuji, Václav Růžička, realitní specialista.
Prodávající si vyhrazuje právo na výběr kupujícího dle vlastní úvahy (způsob úhrady a výše kupní ceny, serióznost jednání apod.).
Parametry
- ID nabídky Realingo-XA-467
- Cihlová stavba
- Dobrý stav
- Patrový
- Přízemí (z 2 pater)
- 75 m² užitné plochy
- 61 200 Kč za m² užitné plochy
- Osobní vlastnictví
- Lodžie
- Jednopodlažní byt
- na Realingu
- Aktualizace před 31 dny







