

Prodej bytu o dispozici 2+kk je součástí rezidenčního projektu na Praze 6 Břevnov, který vzniká kompletní rekonstrukcí bytového domu v jedné z nejklidnějších částí Prahy. Lokalita uprostřed vilové čtvrti nabízí kombinaci zeleně, soukromí a výborné dostupnosti do centra.
Součástí domu je soukromá sauna a posilovna.
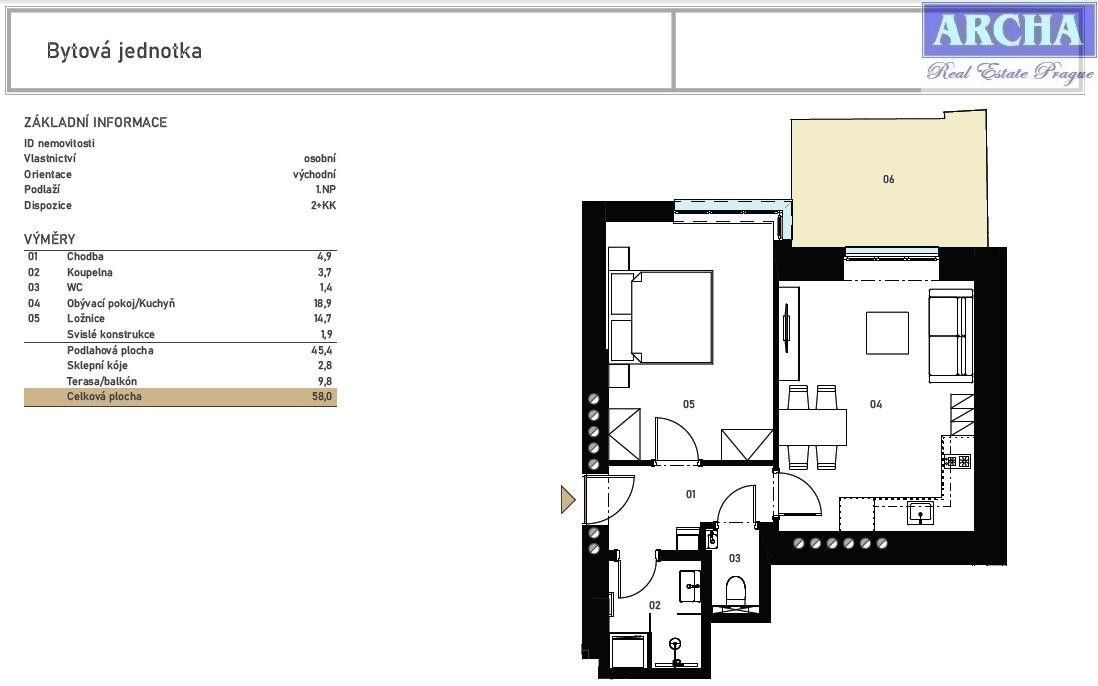
Půdorys bytu na 1. podlaží o podlahové ploše 45,4 m² a celkové ploše 58 m² zahrnuje obývací pokoj s přípravou na kuchyni, ložnici, vstupní chodbu, praktickou komoru, koupelnu se sprchovým koutem a samostatnou toaletou. K jednotce náleží také sklepní kóje. Byt bude dokončen v provedení fit out včetně hotové koupelny, podlah, dveří a kompletních rozvodů. Veškeré vybavení odpovídá současným standardům moderního bydlení.
Vlastnictví osobní
Dispozice 2+kk
Celková plocha 58 m²
Podlahová plocha 45,4 m²
Podlaží: 1
Terasa 9,8 m²
Sklepní kóje 2,8 m²
Plastová okna, trojsklo
Samostatné měření vodoměrem, elektroměrem.
Vchodové dveře bezpečnostní, hladké.
Podlaha dřevěná, třívrstvá, lamelová
Ke koupi ihned.
Bytový dům prochází celkovou rekonstrukcí, jejíž součástí je nový výtah, vstupní portály s bezpečnostními dveřmi a kvalitně provedené společné prostory s keramickou dlažbou a dřevěnými prvky.
Obyvatelům bude k dispozici relaxační zóna se saunou a fitness, kolárna, prádelna a upravený vnitroblok s klidovou částí a posezením.
Rezidence se nachází v tiché ulici, obklopené zelení a rezidenční zástavbou.
V docházkové vzdálenosti je veškerá občanská vybavenost včetně obchodů, kaváren, škol i zastávek MHD.
Lokalita nabízí pohodové zázemí s rychlým spojením do centra i na letiště.
Občas jsou ale dny, kdy každý ocení více soukromí. Pro takové chvíle je ideálním místem odpočinku nový vnitroblok s klidovou zónou a posezením.
Společenská část s grilem zase láká k sousedským setkáním a pohodovým večerům na čerstvém vzduchu.
Největším překvapením rezidence je privátní RELAXAČNÍ ZÓNA se SAUNOU a FITNESS, která je dostupná pouze pro obyvatele domu.
Provizi neplatíte.
ARCHA realitní kancelář
PRAHA
Telefon: 737851059, 702072257, 608135458
Dat. schránka: vdc4dg
E-mail: archa-rk@seznam.cz
www.instagram.com/nemovitosti_archa
www.facebook.com/nemovitosti.archa
www.twitter.com/archa_life
www.archa-rk.cz
Parametry
- ID nabídky Realingo-5755
- Cihlová stavba
- Dobrý stav
- Patrový
- Přízemí (z 5 pater)
- 58 m² užitné plochy
- 45 m² podlahové plochy
- 164 448 Kč za m² užitné plochy
- Osobní vlastnictví
- Terasa (10 m²) a sklep (3 m²)
- na Realingu
- Aktualizace před 51 dny







