

5 400 000 Kč
Rodinný dům, 90 m², Za Velenkou, Vrbice
Dovoluji si Vám výhradně nabídnout k prodeji prostorný rodinný dům v klidné a příjemné lokalitě, který je ideální pro rodiny s dětmi. Tento dům se nachází na adrese Ulice Za Velenkou Č. p. 114, Obec Vrbice, okres Nymburk. S celkovou užitnou plochou 90 m² a zastavěnou plochou 114 m² je dostatečně prostorný pro vaše rodinné potřeby.
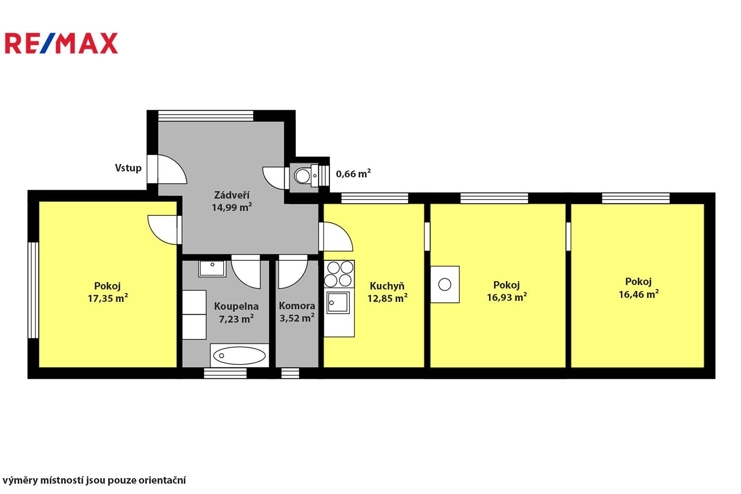
Dispozice domu: zádveří, koupelna, samostatné WC, komora, kuchyň, tři pokoje + (další možnost je upravit podkroví). K nemovitosti náleží pozemek o výměře 901 m², který oplývá velkou zahradou a přilehlým fotbalovým hřištěm – ideální pro bezpečnou hru dětí a rodinné aktivity na čerstvém vzduchu.
V okolí se nachází několik škol a vzdělávacích institucí, což je velkou výhodou zejména pro rodiny s dětmi. Pro volnočasové aktivity je pak v okolí mnoho parků a hřišť, kde si vaše děti mohou hrát a rozvíjet své dovednosti.
K vytápění domu je k dispozici elektrokotel a krbová kamna pro příjemné klima v zimních měsících. Objekt je napojen na kanalizaci, vodovod a elektriku + vlastní studna na pozemku.
Dům se nachází v klidné lokalitě s dobrou dostupností veřejné dopravy. V blízkosti jsou autobusové zastávky i dálnice, takže máte snadný přístup do okolních měst a obcí.
Pokud hledáte domov, kde budete mít vše, co potřebujete pro pohodlný a spokojený život s dětmi, nenechte si tuto příležitost ujít. V případě zájmu o prohlídku nás neváhejte kontaktovat. Nemovitost lze financovat hypotékou, kterou Vám rádi pomůžeme vyřídit. V případě zájmu kontaktujte makléře, který Vás rád touto nemovitostí provede a sdělí bližší informace. V případě více zájemců o koupi nemovitosti se bude nemovitost prodávat formou aukce.
Parametry
- ID nabídky Realingo-407616
- Jiný druh stavby
- Dobrý stav
- 90 m² užitné plochy
- 901 m² pozemku
- 114 m² zastavěné plochy
- 60 000 Kč za m² užitné plochy
- Energeticky mimořádně nehospodárná (G)
- Přípojky: elektřina a kanalizace
- na Realingu
- Aktualizace před 98 dny
Co je v okolí
včetně kontaktních údajů na majitele
Jste inzerent?
Je toto vaše nabídka? Vylepšete ji a získejte více zájemců. Inzerování na Realingu je zdarma pro všechny.
Podobné nabídky v okolí
5 400 000 Kč
Rodinný dům, 90 m² + 901 m² pozemek
Za Velenkou, Vrbice
včetně kontaktních údajů na majitele
Jste inzerent?
Je toto vaše nabídka? Vylepšete ji a získejte více zájemců. Inzerování na Realingu je zdarma pro všechny.







